


Moderne Hoekwoning in Estepona
Estepona, Costa del Sol
Ontdek deze ruime, volledig gerenoveerde hoekwoning in het hart van Estepona. Met een privé tuin, 2 parkeerplaatsen en energiezuinige voorzieningen biedt dit huis de perfecte mix van comfort en centrale ligging, vlakbij strand, winkels en scholen.
Eigenschappen van de woning
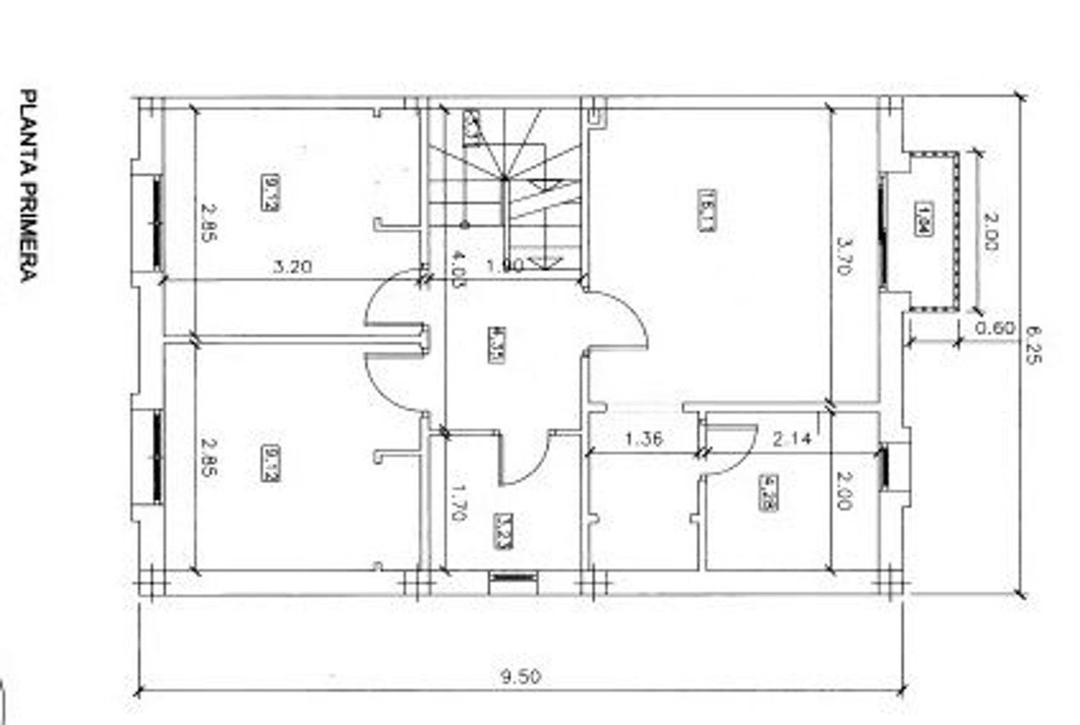
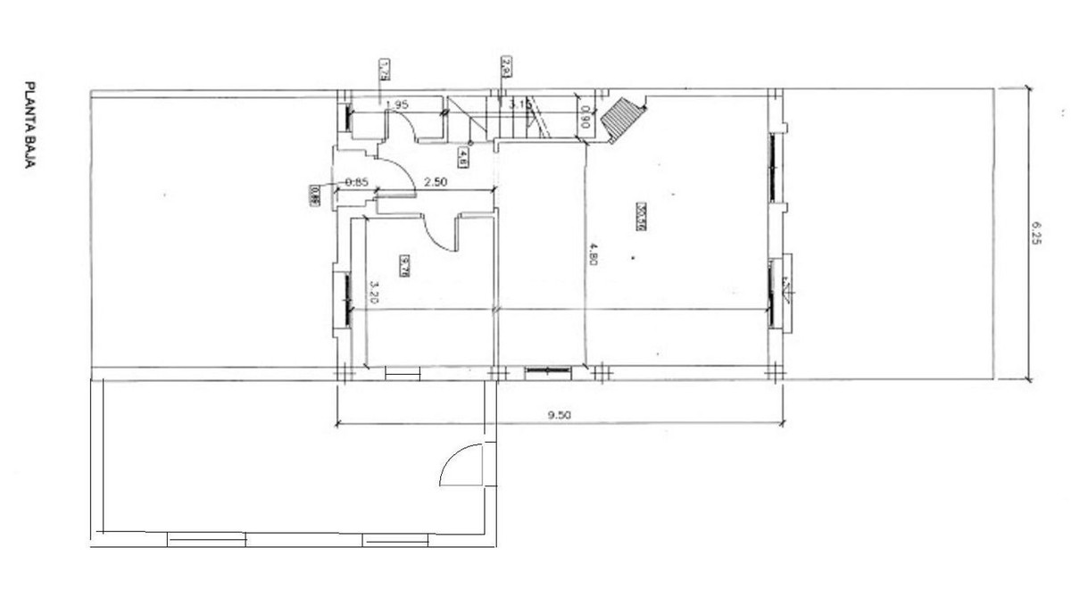
Deze woning van 200 m², verdeeld over drie verdiepingen, combineert praktische ruimtes met comfort. De begane grond bevat een gedeeltelijk ingerichte keuken met soft-close kasten, een lichte woon-eetkamer met open haard en airconditioning, een gastentoilet en een berging/laundry ruimte. De 118 m² grote privé tuin met een overdekt terras en barbecue is ideaal voor gezellige buitenmomenten.
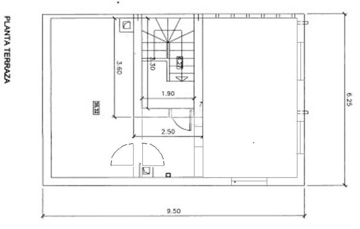
Op de eerste verdieping bevinden zich drie slaapkamers en twee badkamers, waaronder een en-suite badkamer bij de master bedroom en een recent vernieuwde familiebadkamer. De bovenste verdieping is een ruime vierde slaapkamer of kantoor met toegang tot een 18 m² privéterras, waar je een vrij uitzicht hebt, inclusief de zee en de Rots van Gibraltar bij helder weer.
Extra voordelen zijn dubbele beglazing, een nieuwe elektrische installatie, een veiligheidsdeur en een zonne-energie waterverwarming, inclusief een 5 kW fotovoltaïsch systeem met batterij dat zorgt voor zeer lage energiekosten. Er zijn ook twee privé parkeerplaatsen op eigen terrein, een zeldzaamheid in deze buurt.
Over Estepona
Estepona is een gewilde locatie aan de Costa del Sol dankzij de gunstige ligging vlakbij het strand, winkels, scholen en het centrum. Deze stad biedt een aangename stedelijke sfeer zonder in te leveren op rust en natuur. De regio Málaga en de gehele Costa del Sol staan bekend om hun milde klimaat, prachtige uitzichten op zee en uitstekende infrastructuur.
Voor investeerders en liefhebbers van een tweede woning is Estepona interessant door de combinatie van goede bereikbaarheid, moderne voorzieningen en aantrekkelijke leefomgeving. De nabijheid van belangrijke voorzieningen zoals gezondheidscentra, sportfaciliteiten en openbaar vervoer maakt het wonen hier heel comfortabel.
Woning Kenmerken
Ligging
Persoonlijke begeleiding
Bij ons betaalt u als koper géén provisie voor onze diensten als aankoopmakelaar. Wij behoren tot de weinige gecertificeerde aankoopmakelaars in Spanje en hebben meer dan 15 jaar ervaring. Al talloze cliënten hebben wij mogen helpen hun Spaanse droomhuis te vinden.
Een huis kopen - of het nu een tweede woning of investering is - doet u niet elke dag. Daarom bieden wij persoonlijke begeleiding tijdens het hele aankoopproces. Of u nu op zoek bent naar het perfecte vakantiehuis of een slimme investering: wij staan voor u klaar. Van het vinden van uw droomwoning tot het regelen van financiering en advies over de juiste notaris. Wij zijn er voor u.
Eigenschappen van de woning
Deze woning van 200 m², verdeeld over drie verdiepingen, combineert praktische ruimtes met comfort. De begane grond bevat een gedeeltelijk ingerichte keuken met soft-close kasten, een lichte woon-eetkamer met open haard en airconditioning, een gastentoilet en een berging/laundry ruimte. De 118 m² grote privé tuin met een overdekt terras en barbecue is ideaal voor gezellige buitenmomenten.
Op de eerste verdieping bevinden zich drie slaapkamers en twee badkamers, waaronder een en-suite badkamer bij de master bedroom en een recent vernieuwde familiebadkamer. De bovenste verdieping is een ruime vierde slaapkamer of kantoor met toegang tot een 18 m² privéterras, waar je een vrij uitzicht hebt, inclusief de zee en de Rots van Gibraltar bij helder weer.
Extra voordelen zijn dubbele beglazing, een nieuwe elektrische installatie, een veiligheidsdeur en een zonne-energie waterverwarming, inclusief een 5 kW fotovoltaïsch systeem met batterij dat zorgt voor zeer lage energiekosten. Er zijn ook twee privé parkeerplaatsen op eigen terrein, een zeldzaamheid in deze buurt.
Over Estepona
Estepona is een gewilde locatie aan de Costa del Sol dankzij de gunstige ligging vlakbij het strand, winkels, scholen en het centrum. Deze stad biedt een aangename stedelijke sfeer zonder in te leveren op rust en natuur. De regio Málaga en de gehele Costa del Sol staan bekend om hun milde klimaat, prachtige uitzichten op zee en uitstekende infrastructuur.
Voor investeerders en liefhebbers van een tweede woning is Estepona interessant door de combinatie van goede bereikbaarheid, moderne voorzieningen en aantrekkelijke leefomgeving. De nabijheid van belangrijke voorzieningen zoals gezondheidscentra, sportfaciliteiten en openbaar vervoer maakt het wonen hier heel comfortabel.
Woning Kenmerken
Ligging
Een online bezichtiging is mogelijk voor deze woning
Spreek een tijd af voor een live video met de makelaar en bekijk de woning vanuit uw woonkamer!
Certified by


Persoonlijke begeleiding
Bij ons betaalt u als koper géén provisie voor onze diensten als aankoopmakelaar. Wij behoren tot de weinige gecertificeerde aankoopmakelaars in Spanje en hebben meer dan 15 jaar ervaring. Al talloze cliënten hebben wij mogen helpen hun Spaanse droomhuis te vinden.
Een huis kopen - of het nu een tweede woning of investering is - doet u niet elke dag. Daarom bieden wij persoonlijke begeleiding tijdens het hele aankoopproces. Of u nu op zoek bent naar het perfecte vakantiehuis of een slimme investering: wij staan voor u klaar. Van het vinden van uw droomwoning tot het regelen van financiering en advies over de juiste notaris. Wij zijn er voor u.































































































































































