Agentprofiel
Makelaar
15 jaren ervaring
265 Aantal verkopen
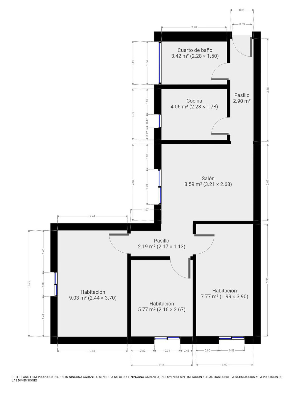
Tussenverdieping Appartement in Dos Hermanas
Dos Hermanas
Begane grond appartement in Dos Hermanas