


Vera, Costa de Almería
Ontdek deze moderne nieuwbouw appartementen in Vera, slechts 400 meter van het prachtige strand El Playazo. Ruimtelijk wonen met hoge plafonds en een groot terras van 66 m². Perfect voor een tweede huis of investering aan de kust van Almería.
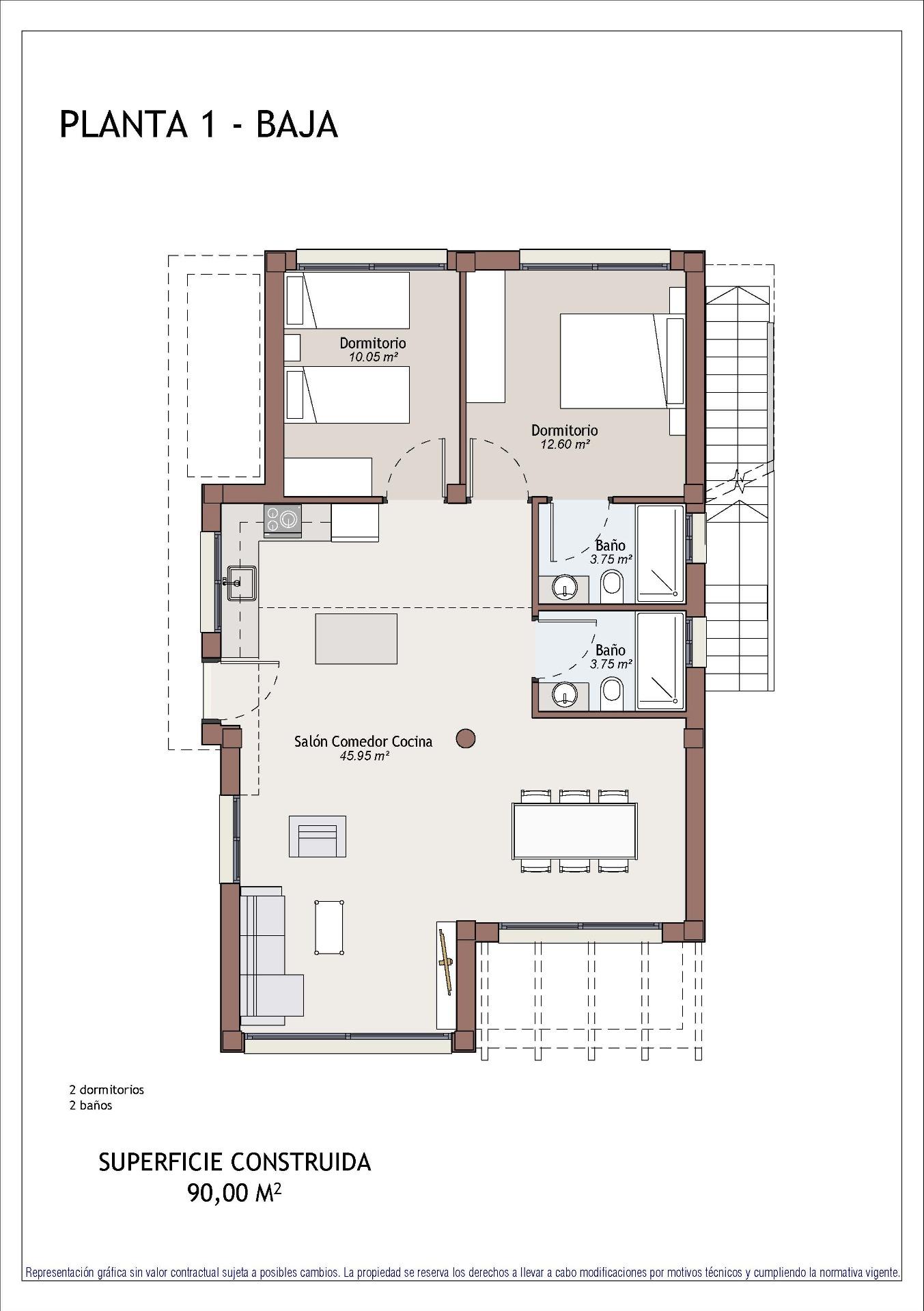
Deze residentie is uitgerust met een lift en een grote gemeenschappelijke zwembadaanleg waar zowel volwassenen als kinderen kunnen genieten. De appartementen hebben een gebruiksoppervlak van 95 m² met drie comfortabele tweepersoonsslaapkamers en een ruime, zonnige terras van 66 m². Elke woning heeft een privé parkeerplaats en is omheind voor maximale veiligheid en privacy.
De locatie is perfect; direct aan de kust en slechts 400 meter van het strand. Voor golfliefhebbers ligt er een golfresort in de buurt. Voor extra comfort is de airconditioning al geïnstalleerd en is er ook een fitnessruimte aanwezig binnen de urbanisatie.
Vera staat bekend om haar ongerepte stranden en is een paradijs voor natuurliefhebbers. Met 6 kilometer aan stranden, waaronder het beroemde El Playazo, is het een toplocatie voor investeerders en tweedehuiskopers die rust zoeken. De nabijheid van Mojacar en de Almanzora-grotten maakt het een aantrekkelijk gebied, waar ontspanning en recreatie perfect samenkomen.
Costa de Almería biedt een mediterraan klimaat, een authentieke Spaanse sfeer en uitstekende infrastructuur. Almería zelf is een groeiende stad met allerlei voorzieningen en verbindt vrij eenvoudig met nabijgelegen luchthavens. Een slimme keuze voor wie wil investeren in een eigendom aan de Spaanse kust.
Bij ons betaalt u als koper géén provisie voor onze diensten als aankoopmakelaar. Wij behoren tot de weinige gecertificeerde aankoopmakelaars in Spanje en hebben meer dan 15 jaar ervaring. Al talloze cliënten hebben wij mogen helpen hun Spaanse droomhuis te vinden.
Een huis kopen - of het nu een tweede woning of investering is - doet u niet elke dag. Daarom bieden wij persoonlijke begeleiding tijdens het hele aankoopproces. Of u nu op zoek bent naar het perfecte vakantiehuis of een slimme investering: wij staan voor u klaar. Van het vinden van uw droomwoning tot het regelen van financiering en advies over de juiste notaris. Wij zijn er voor u.
Deze residentie is uitgerust met een lift en een grote gemeenschappelijke zwembadaanleg waar zowel volwassenen als kinderen kunnen genieten. De appartementen hebben een gebruiksoppervlak van 95 m² met drie comfortabele tweepersoonsslaapkamers en een ruime, zonnige terras van 66 m². Elke woning heeft een privé parkeerplaats en is omheind voor maximale veiligheid en privacy.
De locatie is perfect; direct aan de kust en slechts 400 meter van het strand. Voor golfliefhebbers ligt er een golfresort in de buurt. Voor extra comfort is de airconditioning al geïnstalleerd en is er ook een fitnessruimte aanwezig binnen de urbanisatie.
Vera staat bekend om haar ongerepte stranden en is een paradijs voor natuurliefhebbers. Met 6 kilometer aan stranden, waaronder het beroemde El Playazo, is het een toplocatie voor investeerders en tweedehuiskopers die rust zoeken. De nabijheid van Mojacar en de Almanzora-grotten maakt het een aantrekkelijk gebied, waar ontspanning en recreatie perfect samenkomen.
Costa de Almería biedt een mediterraan klimaat, een authentieke Spaanse sfeer en uitstekende infrastructuur. Almería zelf is een groeiende stad met allerlei voorzieningen en verbindt vrij eenvoudig met nabijgelegen luchthavens. Een slimme keuze voor wie wil investeren in een eigendom aan de Spaanse kust.
Spreek een tijd af voor een live video met de makelaar en bekijk de woning vanuit uw woonkamer!


Bij ons betaalt u als koper géén provisie voor onze diensten als aankoopmakelaar. Wij behoren tot de weinige gecertificeerde aankoopmakelaars in Spanje en hebben meer dan 15 jaar ervaring. Al talloze cliënten hebben wij mogen helpen hun Spaanse droomhuis te vinden.
Een huis kopen - of het nu een tweede woning of investering is - doet u niet elke dag. Daarom bieden wij persoonlijke begeleiding tijdens het hele aankoopproces. Of u nu op zoek bent naar het perfecte vakantiehuis of een slimme investering: wij staan voor u klaar. Van het vinden van uw droomwoning tot het regelen van financiering en advies over de juiste notaris. Wij zijn er voor u.