


San Pedro del Pinatar, Costa Cálida
Ontdek deze prachtige ontwikkeling met acht moderne villa's, elk met privézwembad en slimme indeling. Ruime woon-eetkamer, luxe keuken en comfortabele slaapkamers maken dit de ideale plek om te ontspannen onder de Mediterrane zon.
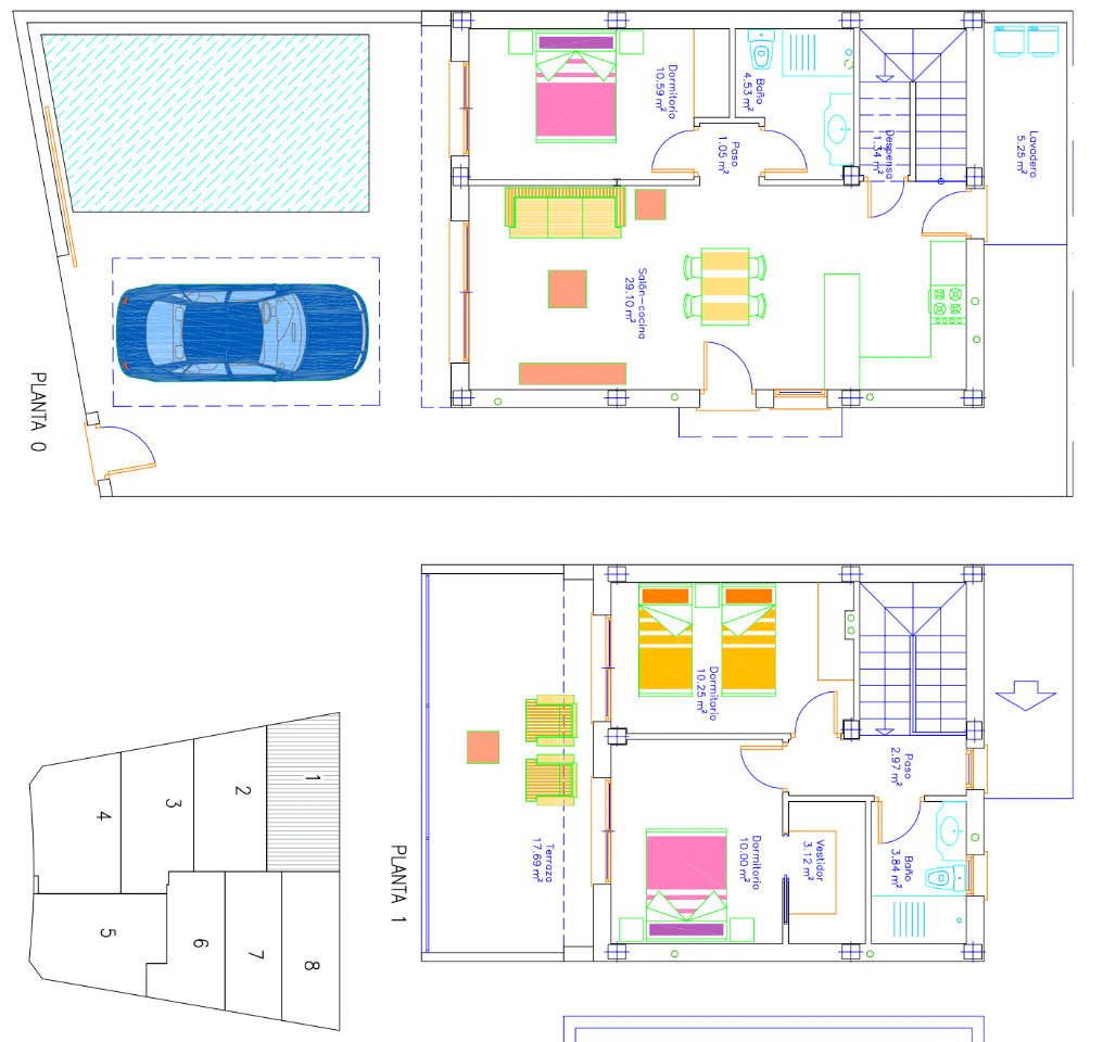
Elke villa is ontworpen met een open plattegrond en grote schuifdeuren die naadloos binnen- en buitenleven verbinden. Op de begane grond vind je een lichte woonkamer, eetgedeelte, moderne keuken en een slaapkamer met eigen badkamer. De eerste verdieping heeft twee extra slaapkamers met toegang tot het terras en een tweede badkamer. Sommige villa's hebben een privé solarium, perfect bereikbaar via een interne trap.
Extra's die deze villa's uniek maken: hoogwaardige Balay-apparatuur in de keuken, volledig uitgeruste badkamers, een praktische wasruimte en ingebouwde kledingkasten met sfeerverlichting in de slaapkamers. De master bedroom beschikt over een inloopkast. Verder zijn de woningen voorzien van airconditioning, privéparkeerplaatsen en een zwembad met jacuzzi-functie voor ultiem comfort.
San Pedro del Pinatar biedt een perfecte mix van ontspanning en gemak. Gelegen aan de Costa Cálida, combineert het de charme van een authentiek Spaans stadje met de nabijheid van kristalheldere stranden en het rustige water van de Mar Menor. Deze locatie is ideaal voor zowel investeerders als mensen die op zoek zijn naar een tweede huis, dankzij de goede infrastructuur, diverse voorzieningen en levendige sfeer.
De Costa Cálida staat bekend om haar milde klimaat en rustige, ongerepte kustlijn. Murcia, als regio, biedt daarnaast een stabiele vastgoedmarkt met groeipotentieel en een rijke culturele achtergrond. Samengevat is dit gebied perfect voor wie wil genieten van zon, zee en een relaxte levensstijl.
Bij ons betaalt u als koper géén provisie voor onze diensten als aankoopmakelaar. Wij behoren tot de weinige gecertificeerde aankoopmakelaars in Spanje en hebben meer dan 15 jaar ervaring. Al talloze cliënten hebben wij mogen helpen hun Spaanse droomhuis te vinden.
Een huis kopen - of het nu een tweede woning of investering is - doet u niet elke dag. Daarom bieden wij persoonlijke begeleiding tijdens het hele aankoopproces. Of u nu op zoek bent naar het perfecte vakantiehuis of een slimme investering: wij staan voor u klaar. Van het vinden van uw droomwoning tot het regelen van financiering en advies over de juiste notaris. Wij zijn er voor u.
Elke villa is ontworpen met een open plattegrond en grote schuifdeuren die naadloos binnen- en buitenleven verbinden. Op de begane grond vind je een lichte woonkamer, eetgedeelte, moderne keuken en een slaapkamer met eigen badkamer. De eerste verdieping heeft twee extra slaapkamers met toegang tot het terras en een tweede badkamer. Sommige villa's hebben een privé solarium, perfect bereikbaar via een interne trap.
Extra's die deze villa's uniek maken: hoogwaardige Balay-apparatuur in de keuken, volledig uitgeruste badkamers, een praktische wasruimte en ingebouwde kledingkasten met sfeerverlichting in de slaapkamers. De master bedroom beschikt over een inloopkast. Verder zijn de woningen voorzien van airconditioning, privéparkeerplaatsen en een zwembad met jacuzzi-functie voor ultiem comfort.
San Pedro del Pinatar biedt een perfecte mix van ontspanning en gemak. Gelegen aan de Costa Cálida, combineert het de charme van een authentiek Spaans stadje met de nabijheid van kristalheldere stranden en het rustige water van de Mar Menor. Deze locatie is ideaal voor zowel investeerders als mensen die op zoek zijn naar een tweede huis, dankzij de goede infrastructuur, diverse voorzieningen en levendige sfeer.
De Costa Cálida staat bekend om haar milde klimaat en rustige, ongerepte kustlijn. Murcia, als regio, biedt daarnaast een stabiele vastgoedmarkt met groeipotentieel en een rijke culturele achtergrond. Samengevat is dit gebied perfect voor wie wil genieten van zon, zee en een relaxte levensstijl.
Spreek een tijd af voor een live video met de makelaar en bekijk de woning vanuit uw woonkamer!


Bij ons betaalt u als koper géén provisie voor onze diensten als aankoopmakelaar. Wij behoren tot de weinige gecertificeerde aankoopmakelaars in Spanje en hebben meer dan 15 jaar ervaring. Al talloze cliënten hebben wij mogen helpen hun Spaanse droomhuis te vinden.
Een huis kopen - of het nu een tweede woning of investering is - doet u niet elke dag. Daarom bieden wij persoonlijke begeleiding tijdens het hele aankoopproces. Of u nu op zoek bent naar het perfecte vakantiehuis of een slimme investering: wij staan voor u klaar. Van het vinden van uw droomwoning tot het regelen van financiering en advies over de juiste notaris. Wij zijn er voor u.