


Moderne Villa in Ciudad Quesada
Rojales, Costa Blanca
Ontdek deze moderne villa met privézwembad en solarium in Doña Pepa, Ciudad Quesada. Met 4 slaapkamers, 3 badkamers en een ruime tuin geniet je van comfort dicht bij supermarkten, golfbanen en stranden.
Belangrijkste Kenmerken
Details van de Villa
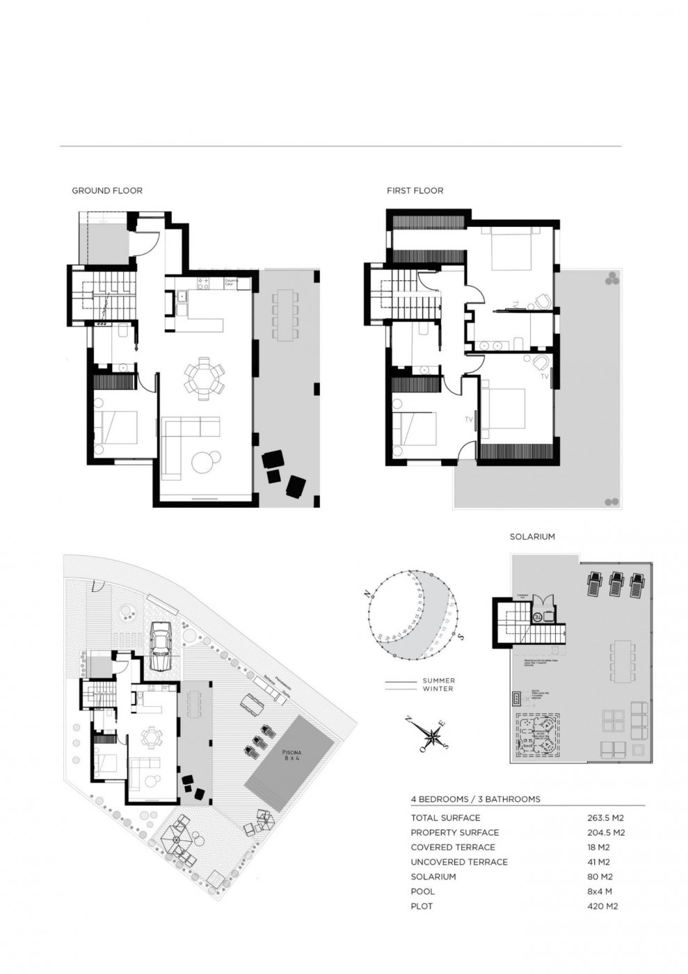
Deze prachtige villa heeft een gebruiksoppervlakte van 150 m² en een terras van 142 m², perfect voor buitenleven. Je beschikt over 4 slaapkamers en 3 badkamers, samen met een ruime woonkamer en open keuken. Een eigen zwembad en tuin zorgen voor ultieme privacy. Het solarium biedt een fantastisch uitzicht, ideaal om van de zon te genieten. Er is een privéparkeerplaats en de villa is gelegen in een beveiligde urbanisatie, vlakbij het strand (7 km), golfbanen, scholen en winkelcentra. Voor extra comfort is airconditioning al voorbereid en er is een praktische kelder aanwezig.
Over Rojales
Rojales is een populaire plek voor investeerders en tweede woning kopers dankzij zijn gunstige ligging aan de Costa Blanca. De regio combineert authentiek Spaans leven met moderne voorzieningen. Nabijheid van Alicante en directe toegang tot stranden en golfresorts maakt Rojales aantrekkelijk voor wie van rust en recreatie houdt. De vriendelijke sfeer en goed ontwikkelde infrastructuur zorgen ervoor dat het hier prettig wonen is, zowel permanent als voor vakanties.
Woning Kenmerken
Ligging
Beveiliging
Persoonlijke begeleiding
Bij ons betaalt u als koper géén provisie voor onze diensten als aankoopmakelaar. Wij behoren tot de weinige gecertificeerde aankoopmakelaars in Spanje en hebben meer dan 15 jaar ervaring. Al talloze cliënten hebben wij mogen helpen hun Spaanse droomhuis te vinden.
Een huis kopen - of het nu een tweede woning of investering is - doet u niet elke dag. Daarom bieden wij persoonlijke begeleiding tijdens het hele aankoopproces. Of u nu op zoek bent naar het perfecte vakantiehuis of een slimme investering: wij staan voor u klaar. Van het vinden van uw droomwoning tot het regelen van financiering en advies over de juiste notaris. Wij zijn er voor u.
Details van de Villa
Deze prachtige villa heeft een gebruiksoppervlakte van 150 m² en een terras van 142 m², perfect voor buitenleven. Je beschikt over 4 slaapkamers en 3 badkamers, samen met een ruime woonkamer en open keuken. Een eigen zwembad en tuin zorgen voor ultieme privacy. Het solarium biedt een fantastisch uitzicht, ideaal om van de zon te genieten. Er is een privéparkeerplaats en de villa is gelegen in een beveiligde urbanisatie, vlakbij het strand (7 km), golfbanen, scholen en winkelcentra. Voor extra comfort is airconditioning al voorbereid en er is een praktische kelder aanwezig.
Over Rojales
Rojales is een populaire plek voor investeerders en tweede woning kopers dankzij zijn gunstige ligging aan de Costa Blanca. De regio combineert authentiek Spaans leven met moderne voorzieningen. Nabijheid van Alicante en directe toegang tot stranden en golfresorts maakt Rojales aantrekkelijk voor wie van rust en recreatie houdt. De vriendelijke sfeer en goed ontwikkelde infrastructuur zorgen ervoor dat het hier prettig wonen is, zowel permanent als voor vakanties.
Woning Kenmerken
Ligging
Een online bezichtiging is mogelijk voor deze woning
Spreek een tijd af voor een live video met de makelaar en bekijk de woning vanuit uw woonkamer!
Certified by


Persoonlijke begeleiding
Bij ons betaalt u als koper géén provisie voor onze diensten als aankoopmakelaar. Wij behoren tot de weinige gecertificeerde aankoopmakelaars in Spanje en hebben meer dan 15 jaar ervaring. Al talloze cliënten hebben wij mogen helpen hun Spaanse droomhuis te vinden.
Een huis kopen - of het nu een tweede woning of investering is - doet u niet elke dag. Daarom bieden wij persoonlijke begeleiding tijdens het hele aankoopproces. Of u nu op zoek bent naar het perfecte vakantiehuis of een slimme investering: wij staan voor u klaar. Van het vinden van uw droomwoning tot het regelen van financiering en advies over de juiste notaris. Wij zijn er voor u.












































































