


Luxe 9-Slaapkamer Villa's aan Strand
Riviera del Sol, Costa del Sol
Ontdek deze unieke, moderne villa's met negen slaapkamers, twee verwarmde zwembaden, bioscoop, fitnessruimte en wijnkelder, gelegen in een beveiligde gemeenschap vlakbij strand, winkels en restaurants in Riviera del Sol.
Belangrijkste Kenmerken
Details & Kenmerken
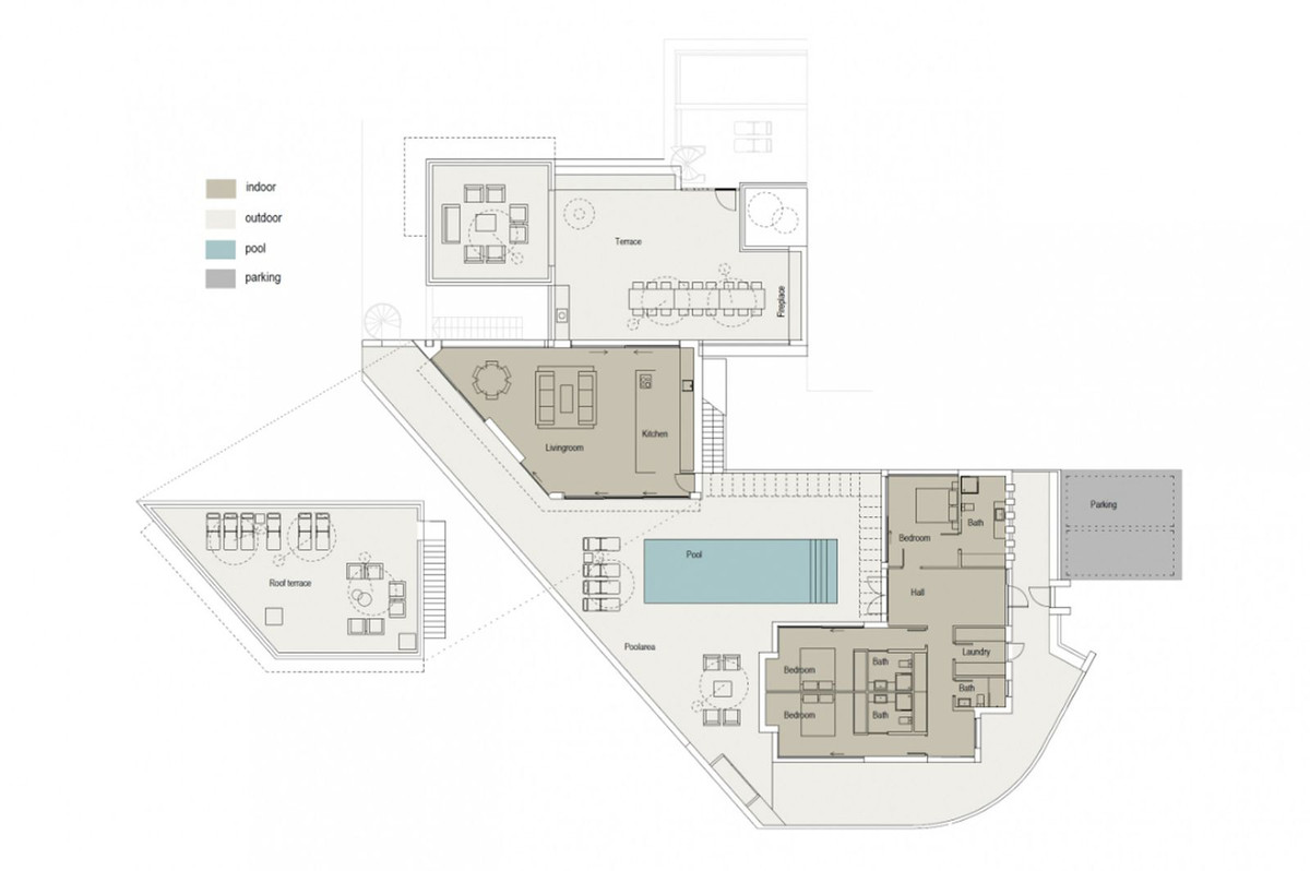
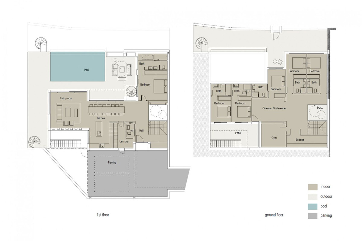
Deze eigentijdse woning bestaat uit twee aangrenzende units op naastgelegen percelen die eenvoudig samen gevoegd kunnen worden. Met een totale bouwoppervlakte van 476 m² omvat het twee royale woonkamers, twee moderne open keukens, twee gastentoiletten en twee grote wasruimtes. Alle negen slaapkamers beschikken over ingebouwde kasten en eigen badkamers met vloerverwarming. De badkamers zijn voorzien van inloopdouches, en één heeft een ligbad. Veel slaapkamers hebben een semi-privé terras en een flatscreen-tv.
De eigenaar heeft bovendien een volledig uitgeruste fitnessruimte, een comfortabele thuisbioscoop en een klimatiserende wijnkelder toegevoegd. Het Sonos geluidssysteem zorgt voor uitstekende audio binnen en buiten. Dankzij hoge plafonds en grote hittebestendige ramen straalt het huis ruimte en licht uit, en zijn binnen en buiten perfect verbonden.
Twee verwarmde zoutwater zwembaden van 8 x 4 meter met tegenstroom en elektrische covers, plus 89 m² aan terrassen en porches, evenals twee grote dakterrassen van 76 m² en 141 m² met glazen balustrades bieden indrukwekkend 360 graden uitzicht over de zee en kustlijn. De totale kavelomvang is 977 m².
Het volledig gemeubileerde interieur is met oog voor design ingericht en ideaal als permanente woning, vakantiehuis of luxe verhuurobject (huidige verhuurprijs €12.000 per week in hoogseizoen). Er is beveiligde, overdekte parkeergelegenheid voor vier auto’s en twee extra open parkeerplaatsen voor de deur.
Beide villa’s zijn voorzien van airconditioning met zones, een waterreserve van 1000 liter, waterbehandelingssysteem, UV-bestendig glas, alarmsysteem, kluis, twee gasbarbecues en videofoon. De locatie is perfect bereikbaar vanuit Málaga en Marbella via de nabijgelegen snelwegen.
Over Riviera del Sol
Riviera del Sol is een charmante woon- en vakantieplaats aan de Costa del Sol, ideaal gelegen tussen Marbella en Fuengirola. Met snelle verbindingen naar Málaga luchthaven, een gevarieerd aanbod aan winkels, restaurants en stranden, biedt het zowel rust als gemak.
Deze regio is populair bij investeerders en tweedehuizenkopers vanwege de veilige gated communities en de hoogwaardige faciliteiten. De natuurlijke schoonheid van de kust gecombineerd met een mild mediterraan klimaat maakt Riviera del Sol een perfecte plek om te wonen of te genieten van vakanties.
De Costa del Sol staat bekend om haar uitstekende infrastructuur, sportmogelijkheden en culturele evenementen. Málaga, als grote stad, biedt internationale verbindingen, een levendige kunstscene en veel voorzieningen. Spanje zelf biedt een stabiele vastgoedmarkt met aantrekkelijke belastingvoordelen voor buitenlandse kopers en een ontspannen levensstijl vol zon en zee.
Woning Kenmerken
Ligging
Beveiliging
Persoonlijke begeleiding
Bij ons betaalt u als koper géén provisie voor onze diensten als aankoopmakelaar. Wij behoren tot de weinige gecertificeerde aankoopmakelaars in Spanje en hebben meer dan 15 jaar ervaring. Al talloze cliënten hebben wij mogen helpen hun Spaanse droomhuis te vinden.
Een huis kopen - of het nu een tweede woning of investering is - doet u niet elke dag. Daarom bieden wij persoonlijke begeleiding tijdens het hele aankoopproces. Of u nu op zoek bent naar het perfecte vakantiehuis of een slimme investering: wij staan voor u klaar. Van het vinden van uw droomwoning tot het regelen van financiering en advies over de juiste notaris. Wij zijn er voor u.
Details & Kenmerken
Deze eigentijdse woning bestaat uit twee aangrenzende units op naastgelegen percelen die eenvoudig samen gevoegd kunnen worden. Met een totale bouwoppervlakte van 476 m² omvat het twee royale woonkamers, twee moderne open keukens, twee gastentoiletten en twee grote wasruimtes. Alle negen slaapkamers beschikken over ingebouwde kasten en eigen badkamers met vloerverwarming. De badkamers zijn voorzien van inloopdouches, en één heeft een ligbad. Veel slaapkamers hebben een semi-privé terras en een flatscreen-tv.
De eigenaar heeft bovendien een volledig uitgeruste fitnessruimte, een comfortabele thuisbioscoop en een klimatiserende wijnkelder toegevoegd. Het Sonos geluidssysteem zorgt voor uitstekende audio binnen en buiten. Dankzij hoge plafonds en grote hittebestendige ramen straalt het huis ruimte en licht uit, en zijn binnen en buiten perfect verbonden.
Twee verwarmde zoutwater zwembaden van 8 x 4 meter met tegenstroom en elektrische covers, plus 89 m² aan terrassen en porches, evenals twee grote dakterrassen van 76 m² en 141 m² met glazen balustrades bieden indrukwekkend 360 graden uitzicht over de zee en kustlijn. De totale kavelomvang is 977 m².
Het volledig gemeubileerde interieur is met oog voor design ingericht en ideaal als permanente woning, vakantiehuis of luxe verhuurobject (huidige verhuurprijs €12.000 per week in hoogseizoen). Er is beveiligde, overdekte parkeergelegenheid voor vier auto’s en twee extra open parkeerplaatsen voor de deur.
Beide villa’s zijn voorzien van airconditioning met zones, een waterreserve van 1000 liter, waterbehandelingssysteem, UV-bestendig glas, alarmsysteem, kluis, twee gasbarbecues en videofoon. De locatie is perfect bereikbaar vanuit Málaga en Marbella via de nabijgelegen snelwegen.
Over Riviera del Sol
Riviera del Sol is een charmante woon- en vakantieplaats aan de Costa del Sol, ideaal gelegen tussen Marbella en Fuengirola. Met snelle verbindingen naar Málaga luchthaven, een gevarieerd aanbod aan winkels, restaurants en stranden, biedt het zowel rust als gemak.
Deze regio is populair bij investeerders en tweedehuizenkopers vanwege de veilige gated communities en de hoogwaardige faciliteiten. De natuurlijke schoonheid van de kust gecombineerd met een mild mediterraan klimaat maakt Riviera del Sol een perfecte plek om te wonen of te genieten van vakanties.
De Costa del Sol staat bekend om haar uitstekende infrastructuur, sportmogelijkheden en culturele evenementen. Málaga, als grote stad, biedt internationale verbindingen, een levendige kunstscene en veel voorzieningen. Spanje zelf biedt een stabiele vastgoedmarkt met aantrekkelijke belastingvoordelen voor buitenlandse kopers en een ontspannen levensstijl vol zon en zee.
Woning Kenmerken
Ligging
Beveiliging
Een online bezichtiging is mogelijk voor deze woning
Spreek een tijd af voor een live video met de makelaar en bekijk de woning vanuit uw woonkamer!
Certified by


Persoonlijke begeleiding
Bij ons betaalt u als koper géén provisie voor onze diensten als aankoopmakelaar. Wij behoren tot de weinige gecertificeerde aankoopmakelaars in Spanje en hebben meer dan 15 jaar ervaring. Al talloze cliënten hebben wij mogen helpen hun Spaanse droomhuis te vinden.
Een huis kopen - of het nu een tweede woning of investering is - doet u niet elke dag. Daarom bieden wij persoonlijke begeleiding tijdens het hele aankoopproces. Of u nu op zoek bent naar het perfecte vakantiehuis of een slimme investering: wij staan voor u klaar. Van het vinden van uw droomwoning tot het regelen van financiering en advies over de juiste notaris. Wij zijn er voor u.



























































































































































































































