


Pinares de San Antón, Málaga Ciudad
Ontdek Finca Lagar de Tolosa, een bijzonder landgoed met rijke geschiedenis en prachtige natuur in het Montes de Málaga Natuurpark. Met een groot perceel, authentieke architectuur en moderne voorzieningen, is dit de ideale plek voor wie historie en rust wil combineren met comfort.
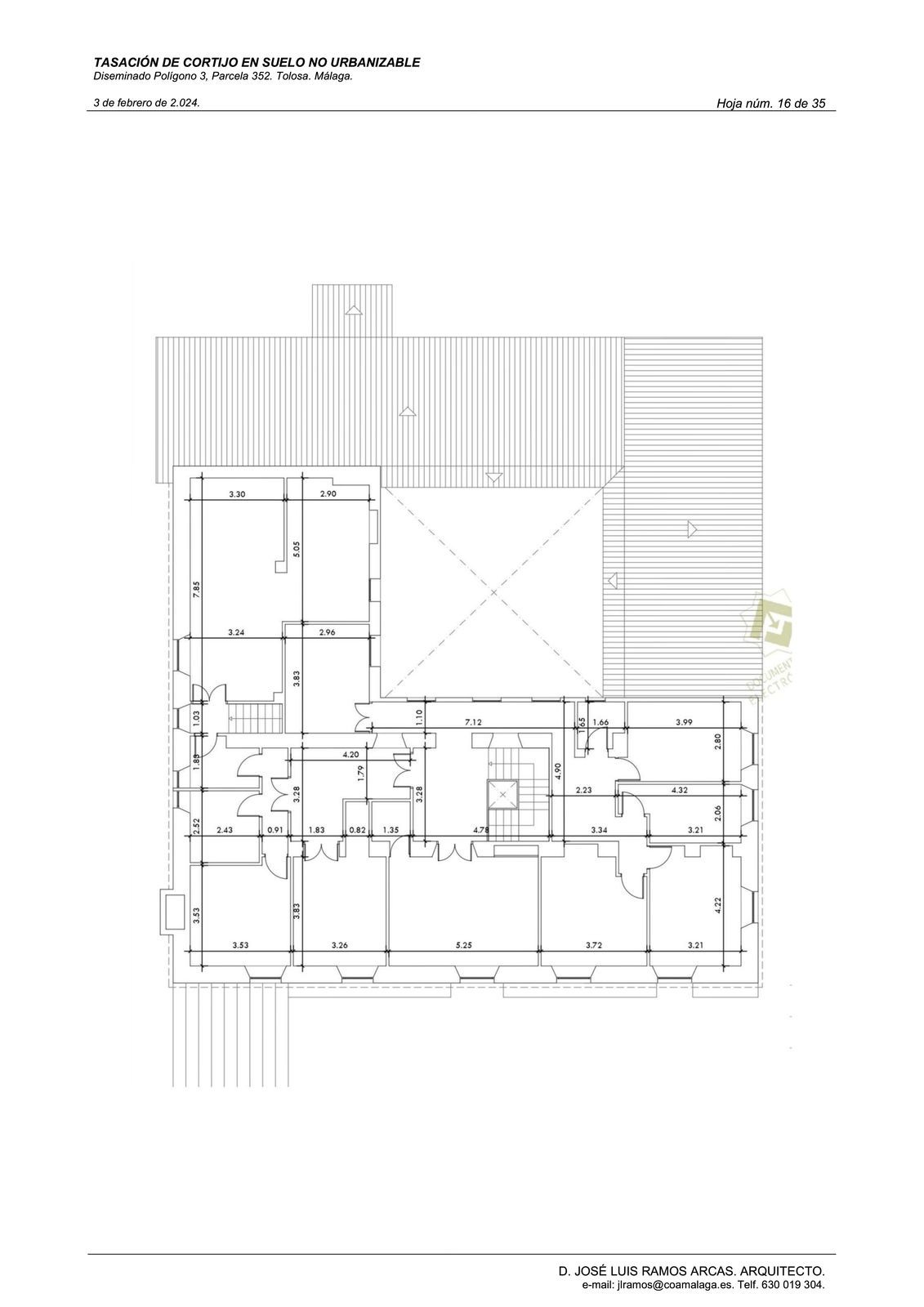
Deze indrukwekkende finca ligt op een perceel van maar liefst 522.000 m² en omvat een oude amandelboomgaard met 2.000 bomen en 80 olijfbomen, omringd door inheemse flora en fauna. Het landgoed beschikt over een privé jachtreservaat en een 675 m² groot huis verdeeld over twee verdiepingen, gebouwd in traditionele stijl met stevige muren en houten balken. Het huis behoudt zijn originele indeling met aparte woonruimtes voor eigenaar en beheerder, en diverse werkruimtes zoals een opslagruimte, stal, zadelkamer, garage en werkplaats. Geniet van het ruime terras en een verfrissend zwembad, met uitzicht over het uitgestrekte domein. Verder zijn er een externe garage, een opslagruimte van 125 m², meerdere watertanks en een eigen waterbron aanwezig. Elektriciteit, internet en mobiele dekking zijn beschikbaar, en aansluiting op het openbare waternet kan geregeld worden.
Pinares de San Antón is een geliefde woonomgeving die combineert natuurlijke rust met stedelijke voorzieningen. Voor investeerders en tweede-huizenkopers biedt deze regio groeiende vastgoedwaarde en een sterke huurmarkt. Málaga Stad staat bekend om zijn bruisende cultuur, gastronomie en stranden, ideaal voor wie van stedelijk leven met Mediterrane flair houdt. Málaga zelf is een toegangspoort tot Zuid-Spanje met uitstekende infrastructuur, nabijheid van vliegveld en diverse recreatiemogelijkheden. Deze combinatie maakt het landgoed in Montes de Málaga extra aantrekkelijk voor wie wil investeren in een unieke, rustige maar goed verbonden locatie.
Bij ons betaalt u als koper géén provisie voor onze diensten als aankoopmakelaar. Wij behoren tot de weinige gecertificeerde aankoopmakelaars in Spanje en hebben meer dan 15 jaar ervaring. Al talloze cliënten hebben wij mogen helpen hun Spaanse droomhuis te vinden.
Een huis kopen - of het nu een tweede woning of investering is - doet u niet elke dag. Daarom bieden wij persoonlijke begeleiding tijdens het hele aankoopproces. Of u nu op zoek bent naar het perfecte vakantiehuis of een slimme investering: wij staan voor u klaar. Van het vinden van uw droomwoning tot het regelen van financiering en advies over de juiste notaris. Wij zijn er voor u.
Deze indrukwekkende finca ligt op een perceel van maar liefst 522.000 m² en omvat een oude amandelboomgaard met 2.000 bomen en 80 olijfbomen, omringd door inheemse flora en fauna. Het landgoed beschikt over een privé jachtreservaat en een 675 m² groot huis verdeeld over twee verdiepingen, gebouwd in traditionele stijl met stevige muren en houten balken. Het huis behoudt zijn originele indeling met aparte woonruimtes voor eigenaar en beheerder, en diverse werkruimtes zoals een opslagruimte, stal, zadelkamer, garage en werkplaats. Geniet van het ruime terras en een verfrissend zwembad, met uitzicht over het uitgestrekte domein. Verder zijn er een externe garage, een opslagruimte van 125 m², meerdere watertanks en een eigen waterbron aanwezig. Elektriciteit, internet en mobiele dekking zijn beschikbaar, en aansluiting op het openbare waternet kan geregeld worden.
Pinares de San Antón is een geliefde woonomgeving die combineert natuurlijke rust met stedelijke voorzieningen. Voor investeerders en tweede-huizenkopers biedt deze regio groeiende vastgoedwaarde en een sterke huurmarkt. Málaga Stad staat bekend om zijn bruisende cultuur, gastronomie en stranden, ideaal voor wie van stedelijk leven met Mediterrane flair houdt. Málaga zelf is een toegangspoort tot Zuid-Spanje met uitstekende infrastructuur, nabijheid van vliegveld en diverse recreatiemogelijkheden. Deze combinatie maakt het landgoed in Montes de Málaga extra aantrekkelijk voor wie wil investeren in een unieke, rustige maar goed verbonden locatie.
Spreek een tijd af voor een live video met de makelaar en bekijk de woning vanuit uw woonkamer!


Bij ons betaalt u als koper géén provisie voor onze diensten als aankoopmakelaar. Wij behoren tot de weinige gecertificeerde aankoopmakelaars in Spanje en hebben meer dan 15 jaar ervaring. Al talloze cliënten hebben wij mogen helpen hun Spaanse droomhuis te vinden.
Een huis kopen - of het nu een tweede woning of investering is - doet u niet elke dag. Daarom bieden wij persoonlijke begeleiding tijdens het hele aankoopproces. Of u nu op zoek bent naar het perfecte vakantiehuis of een slimme investering: wij staan voor u klaar. Van het vinden van uw droomwoning tot het regelen van financiering en advies over de juiste notaris. Wij zijn er voor u.