


Pilar de la Horadada, Costa Blanca
Ontdek twaalf moderne herenhuizen vlakbij de prachtige stranden van Alicante. Deze woningen combineren de relaxte mediterrane levensstijl met alle voorzieningen binnen handbereik. Perfect als permanente woning, vakantiewoning of investering.
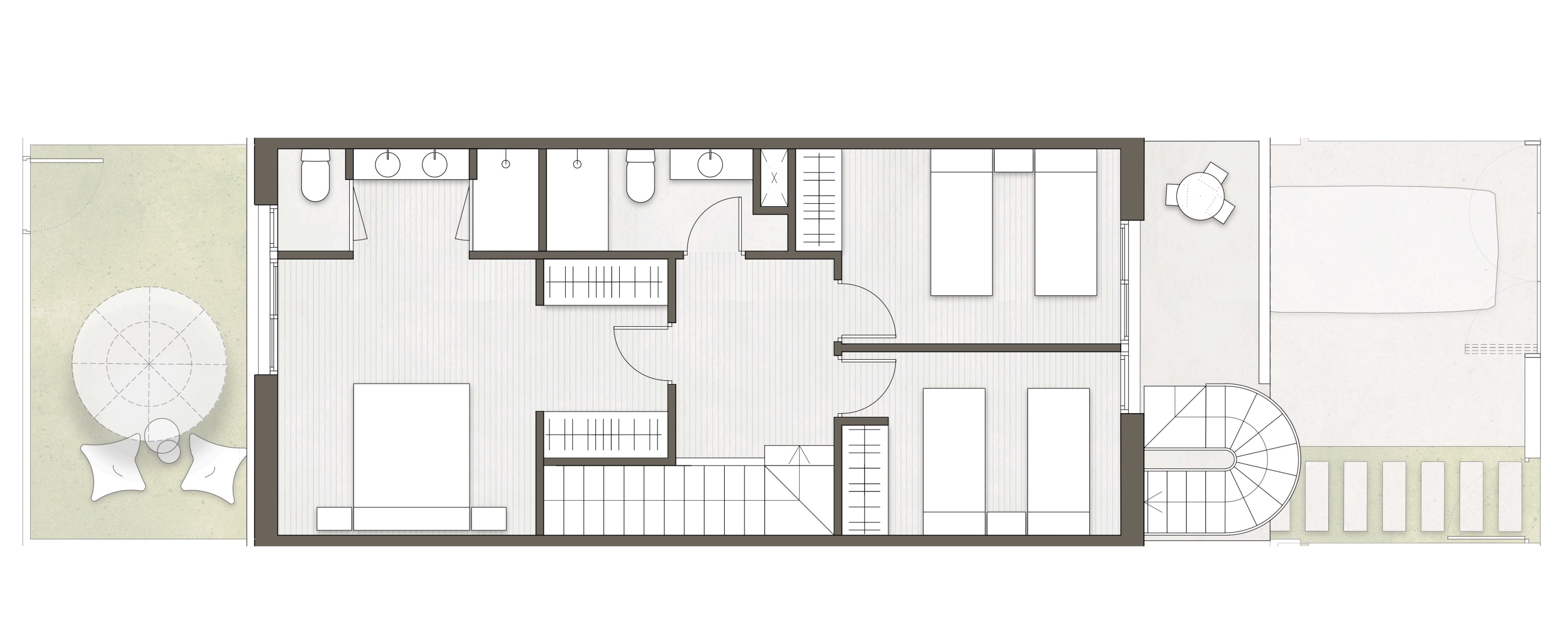
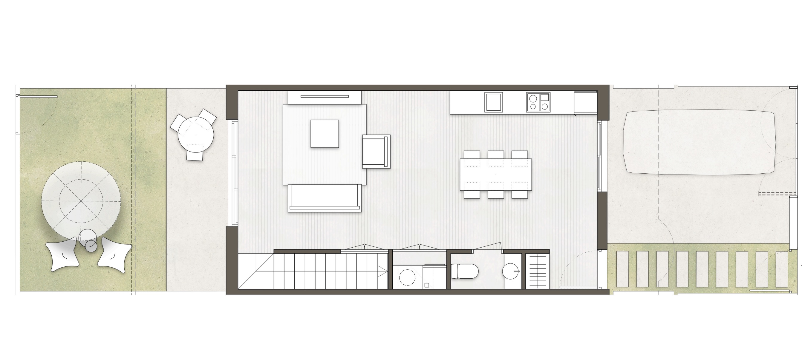
Deze moderne herenhuizen en hoekunits bieden 2 of 3 slaapkamers, 2 badkamers en een gastentoilet. Geniet van je eigen tuin aan zowel de voor- als achterzijde en een privéparkeerplaats op het terrein. De eerste verdieping heeft een terras en bovenop vind je een privé dakterras met prachtig open uitzicht. Daarnaast is er een gemeenschappelijk zwembad om in te ontspannen. Heldere en ruime woonkamers, compleet met volledig uitgeruste keukens en stijlvolle, moderne afwerkingen maken het plaatje af.
Pilar de la Horadada is een charmante kustplaats dichtbij Alicante met een ontspannen sfeer en uitstekende faciliteiten, ideaal voor wie wil genieten van strand en cultuur. De ligging aan de Costa Blanca maakt het tot een topbestemming voor investeerders en mensen die op zoek zijn naar een tweede woning. Met goede verbindingen via nabijgelegen luchthavens en een rijk aanbod aan buitenactiviteiten zoals fietsen en watersport, is het een veelzijdige plek voor ieder wat wils.
Bij ons betaalt u als koper géén provisie voor onze diensten als aankoopmakelaar. Wij behoren tot de weinige gecertificeerde aankoopmakelaars in Spanje en hebben meer dan 15 jaar ervaring. Al talloze cliënten hebben wij mogen helpen hun Spaanse droomhuis te vinden.
Een huis kopen - of het nu een tweede woning of investering is - doet u niet elke dag. Daarom bieden wij persoonlijke begeleiding tijdens het hele aankoopproces. Of u nu op zoek bent naar het perfecte vakantiehuis of een slimme investering: wij staan voor u klaar. Van het vinden van uw droomwoning tot het regelen van financiering en advies over de juiste notaris. Wij zijn er voor u.
Deze moderne herenhuizen en hoekunits bieden 2 of 3 slaapkamers, 2 badkamers en een gastentoilet. Geniet van je eigen tuin aan zowel de voor- als achterzijde en een privéparkeerplaats op het terrein. De eerste verdieping heeft een terras en bovenop vind je een privé dakterras met prachtig open uitzicht. Daarnaast is er een gemeenschappelijk zwembad om in te ontspannen. Heldere en ruime woonkamers, compleet met volledig uitgeruste keukens en stijlvolle, moderne afwerkingen maken het plaatje af.
Pilar de la Horadada is een charmante kustplaats dichtbij Alicante met een ontspannen sfeer en uitstekende faciliteiten, ideaal voor wie wil genieten van strand en cultuur. De ligging aan de Costa Blanca maakt het tot een topbestemming voor investeerders en mensen die op zoek zijn naar een tweede woning. Met goede verbindingen via nabijgelegen luchthavens en een rijk aanbod aan buitenactiviteiten zoals fietsen en watersport, is het een veelzijdige plek voor ieder wat wils.
Spreek een tijd af voor een live video met de makelaar en bekijk de woning vanuit uw woonkamer!


Bij ons betaalt u als koper géén provisie voor onze diensten als aankoopmakelaar. Wij behoren tot de weinige gecertificeerde aankoopmakelaars in Spanje en hebben meer dan 15 jaar ervaring. Al talloze cliënten hebben wij mogen helpen hun Spaanse droomhuis te vinden.
Een huis kopen - of het nu een tweede woning of investering is - doet u niet elke dag. Daarom bieden wij persoonlijke begeleiding tijdens het hele aankoopproces. Of u nu op zoek bent naar het perfecte vakantiehuis of een slimme investering: wij staan voor u klaar. Van het vinden van uw droomwoning tot het regelen van financiering en advies over de juiste notaris. Wij zijn er voor u.