


Nieuwbouwappartementen Playa Flamenca
Orihuela Costa, Costa Blanca
Ontdek deze net gelanceerde nieuwbouwresidential op slechts 500 meter van zee in het populaire Playa Flamenca, Orihuela Costa. Perfect voor vakantie of permanent wonen met fijne gemeenschappelijke zwembaden, jacuzzi’s en tuinen.
Belangrijkste Kenmerken
Kenmerken van het appartement
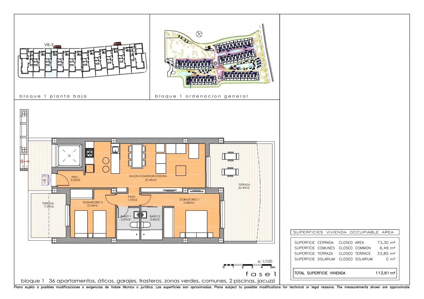
Deze moderne appartementen beschikken over twee slaapkamers en een royale terras van 33 m², ideaal om buiten te genieten. Het gebouw heeft een lift en de urbanisatie is beveiligd met een poort. Er is een gemeenschappelijk zwembad en groene tuinen om te ontspannen. Elke woning wordt geleverd met een privéparkeerplaats en een berging. De locatie is perfect: op 500 meter van het strand, vlakbij winkels, scholen en een bushalte. Bovendien is airconditioning al voorgemonteerd, zodat je klaar bent voor warme zomerdagen. Met 63 m² gebruiksoppervlak combineer je comfort met een ideale kustlocatie.
Over Orihuela Costa
Orihuela Costa is een geliefde plek aan de Costa Blanca dankzij zijn fantastische stranden, uitstekende voorzieningen en rustige sfeer. Voor investeerders en tweede verblijvers biedt deze regio een perfecte balans tussen ontspanning en bereikbaarheid. Je geniet hier van golfbanen, winkelcentra zoals Zenia Boulevard, en diverse restaurants – allemaal binnen handbereik.
De Costa Blanca staat bekend om zijn aangename klimaat, prachtige zandstranden en een breed aanbod aan recreatiemogelijkheden. Alicante als nabijgelegen stad biedt cultuur, een bruisend nachtleven en een internationale luchthaven. Dit maakt het gebied aantrekkelijk voor iedereen die wil investeren in vastgoed of op zoek is naar een fijne tweede woning aan de Spaanse kust.
Woning Kenmerken
Ligging
Beveiliging
Persoonlijke begeleiding
Bij ons betaalt u als koper géén provisie voor onze diensten als aankoopmakelaar. Wij behoren tot de weinige gecertificeerde aankoopmakelaars in Spanje en hebben meer dan 15 jaar ervaring. Al talloze cliënten hebben wij mogen helpen hun Spaanse droomhuis te vinden.
Een huis kopen - of het nu een tweede woning of investering is - doet u niet elke dag. Daarom bieden wij persoonlijke begeleiding tijdens het hele aankoopproces. Of u nu op zoek bent naar het perfecte vakantiehuis of een slimme investering: wij staan voor u klaar. Van het vinden van uw droomwoning tot het regelen van financiering en advies over de juiste notaris. Wij zijn er voor u.
Kenmerken van het appartement
Deze moderne appartementen beschikken over twee slaapkamers en een royale terras van 33 m², ideaal om buiten te genieten. Het gebouw heeft een lift en de urbanisatie is beveiligd met een poort. Er is een gemeenschappelijk zwembad en groene tuinen om te ontspannen. Elke woning wordt geleverd met een privéparkeerplaats en een berging. De locatie is perfect: op 500 meter van het strand, vlakbij winkels, scholen en een bushalte. Bovendien is airconditioning al voorgemonteerd, zodat je klaar bent voor warme zomerdagen. Met 63 m² gebruiksoppervlak combineer je comfort met een ideale kustlocatie.
Over Orihuela Costa
Orihuela Costa is een geliefde plek aan de Costa Blanca dankzij zijn fantastische stranden, uitstekende voorzieningen en rustige sfeer. Voor investeerders en tweede verblijvers biedt deze regio een perfecte balans tussen ontspanning en bereikbaarheid. Je geniet hier van golfbanen, winkelcentra zoals Zenia Boulevard, en diverse restaurants – allemaal binnen handbereik.
De Costa Blanca staat bekend om zijn aangename klimaat, prachtige zandstranden en een breed aanbod aan recreatiemogelijkheden. Alicante als nabijgelegen stad biedt cultuur, een bruisend nachtleven en een internationale luchthaven. Dit maakt het gebied aantrekkelijk voor iedereen die wil investeren in vastgoed of op zoek is naar een fijne tweede woning aan de Spaanse kust.
Woning Kenmerken
Ligging
Een online bezichtiging is mogelijk voor deze woning
Spreek een tijd af voor een live video met de makelaar en bekijk de woning vanuit uw woonkamer!
Certified by


Persoonlijke begeleiding
Bij ons betaalt u als koper géén provisie voor onze diensten als aankoopmakelaar. Wij behoren tot de weinige gecertificeerde aankoopmakelaars in Spanje en hebben meer dan 15 jaar ervaring. Al talloze cliënten hebben wij mogen helpen hun Spaanse droomhuis te vinden.
Een huis kopen - of het nu een tweede woning of investering is - doet u niet elke dag. Daarom bieden wij persoonlijke begeleiding tijdens het hele aankoopproces. Of u nu op zoek bent naar het perfecte vakantiehuis of een slimme investering: wij staan voor u klaar. Van het vinden van uw droomwoning tot het regelen van financiering en advies over de juiste notaris. Wij zijn er voor u.




































































































































































































































