


Moraira, Costa Blanca
Ontdek dit prachtige 3-slaapkamer appartement in het exclusieve Moraira Club complex. Geniet van moderne luxe, een toplocatie vlakbij het strand, winkels en gezellige restaurants. Een perfecte mix van comfort en Spaanse charme wacht hier op u!
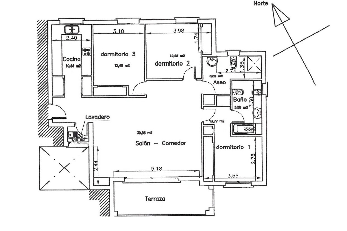
Dit ruime appartement van 116m² biedt alles wat u nodig heeft op één niveau. Met drie tweepersoonsslaapkamers en twee badkamers, waarvan één en-suite, is het ideaal voor gezinnen of gasten. De grote woon-eetkamer heeft een sfeervolle open haard en veel natuurlijk licht. De moderne keuken is volledig uitgerust en heeft een aparte bijkeuken voor extra gemak. Verder is er een overdekt terras om buiten te relaxen. Extra's zoals een berging, een lift, en een garageplek maken het plaatje compleet. Geniet van de goed onderhouden tuin en het royale zwembad met spa jets, perfect voor ontspannen dagen onder de Spaanse zon.
Moraira staat bekend als een charmant kustplaatsje aan de Costa Blanca, waar authenticiteit en luxe samenkomen. Voor investeerders en tweede huis kopers biedt Moraira een aantrekkelijke mix van rustige stranden, uitstekende restaurants en een ontspannen levensstijl. De omgeving is veilig en goed bereikbaar vanuit Alicante, wat het gebied ook interessant maakt voor verhuur. Costa Blanca zelf is populair vanwege het milde klimaat het hele jaar door, terwijl Alicante een levendige stad is met goede vliegvelden en moderne voorzieningen. Spanje blijft een topbestemming voor wie wil genieten van zon, zee en kwaliteit van leven.
Bij ons betaalt u als koper géén provisie voor onze diensten als aankoopmakelaar. Wij behoren tot de weinige gecertificeerde aankoopmakelaars in Spanje en hebben meer dan 15 jaar ervaring. Al talloze cliënten hebben wij mogen helpen hun Spaanse droomhuis te vinden.
Een huis kopen - of het nu een tweede woning of investering is - doet u niet elke dag. Daarom bieden wij persoonlijke begeleiding tijdens het hele aankoopproces. Of u nu op zoek bent naar het perfecte vakantiehuis of een slimme investering: wij staan voor u klaar. Van het vinden van uw droomwoning tot het regelen van financiering en advies over de juiste notaris. Wij zijn er voor u.
Dit ruime appartement van 116m² biedt alles wat u nodig heeft op één niveau. Met drie tweepersoonsslaapkamers en twee badkamers, waarvan één en-suite, is het ideaal voor gezinnen of gasten. De grote woon-eetkamer heeft een sfeervolle open haard en veel natuurlijk licht. De moderne keuken is volledig uitgerust en heeft een aparte bijkeuken voor extra gemak. Verder is er een overdekt terras om buiten te relaxen. Extra's zoals een berging, een lift, en een garageplek maken het plaatje compleet. Geniet van de goed onderhouden tuin en het royale zwembad met spa jets, perfect voor ontspannen dagen onder de Spaanse zon.
Moraira staat bekend als een charmant kustplaatsje aan de Costa Blanca, waar authenticiteit en luxe samenkomen. Voor investeerders en tweede huis kopers biedt Moraira een aantrekkelijke mix van rustige stranden, uitstekende restaurants en een ontspannen levensstijl. De omgeving is veilig en goed bereikbaar vanuit Alicante, wat het gebied ook interessant maakt voor verhuur. Costa Blanca zelf is populair vanwege het milde klimaat het hele jaar door, terwijl Alicante een levendige stad is met goede vliegvelden en moderne voorzieningen. Spanje blijft een topbestemming voor wie wil genieten van zon, zee en kwaliteit van leven.
Spreek een tijd af voor een live video met de makelaar en bekijk de woning vanuit uw woonkamer!


Bij ons betaalt u als koper géén provisie voor onze diensten als aankoopmakelaar. Wij behoren tot de weinige gecertificeerde aankoopmakelaars in Spanje en hebben meer dan 15 jaar ervaring. Al talloze cliënten hebben wij mogen helpen hun Spaanse droomhuis te vinden.
Een huis kopen - of het nu een tweede woning of investering is - doet u niet elke dag. Daarom bieden wij persoonlijke begeleiding tijdens het hele aankoopproces. Of u nu op zoek bent naar het perfecte vakantiehuis of een slimme investering: wij staan voor u klaar. Van het vinden van uw droomwoning tot het regelen van financiering en advies over de juiste notaris. Wij zijn er voor u.