


Kans in hart Mijas Costa
Mijas Costa, Costa del Sol
Een charmant oud huis in het centrum van Mijas Costa met een goedgekeurd project voor 10 nieuwe appartementen. Ideaal gelegen dichtbij winkels, restaurants en openbaar vervoer. Perfect voor een investering of als nieuw woonproject in de gewilde Costa del Sol.
Belangrijkste Kenmerken
Unieke investering & locatie
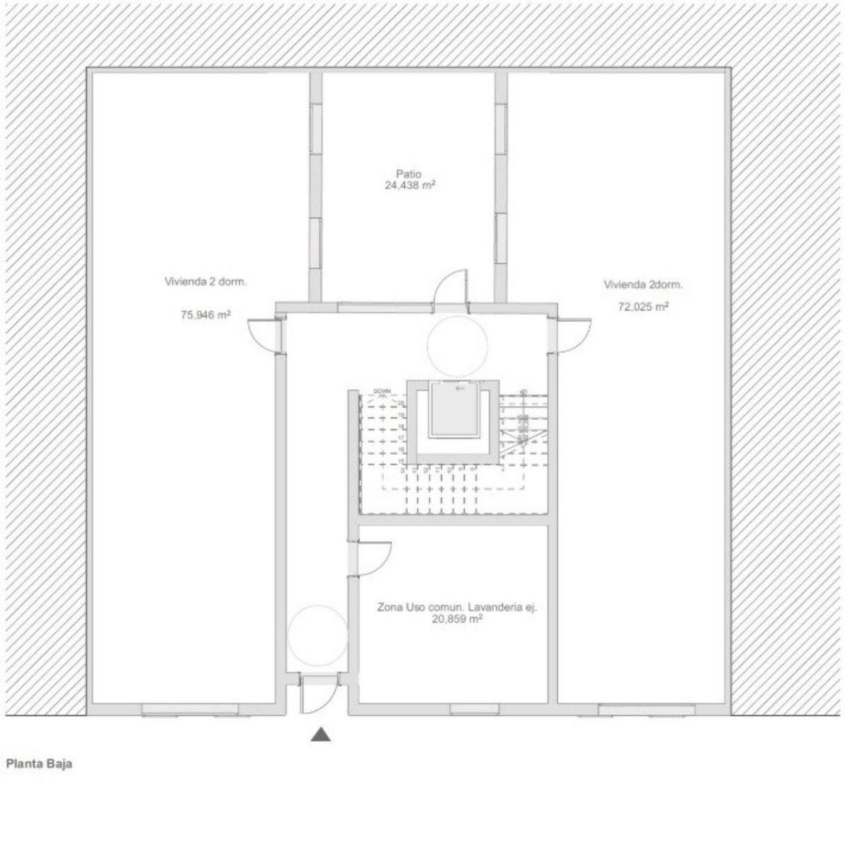
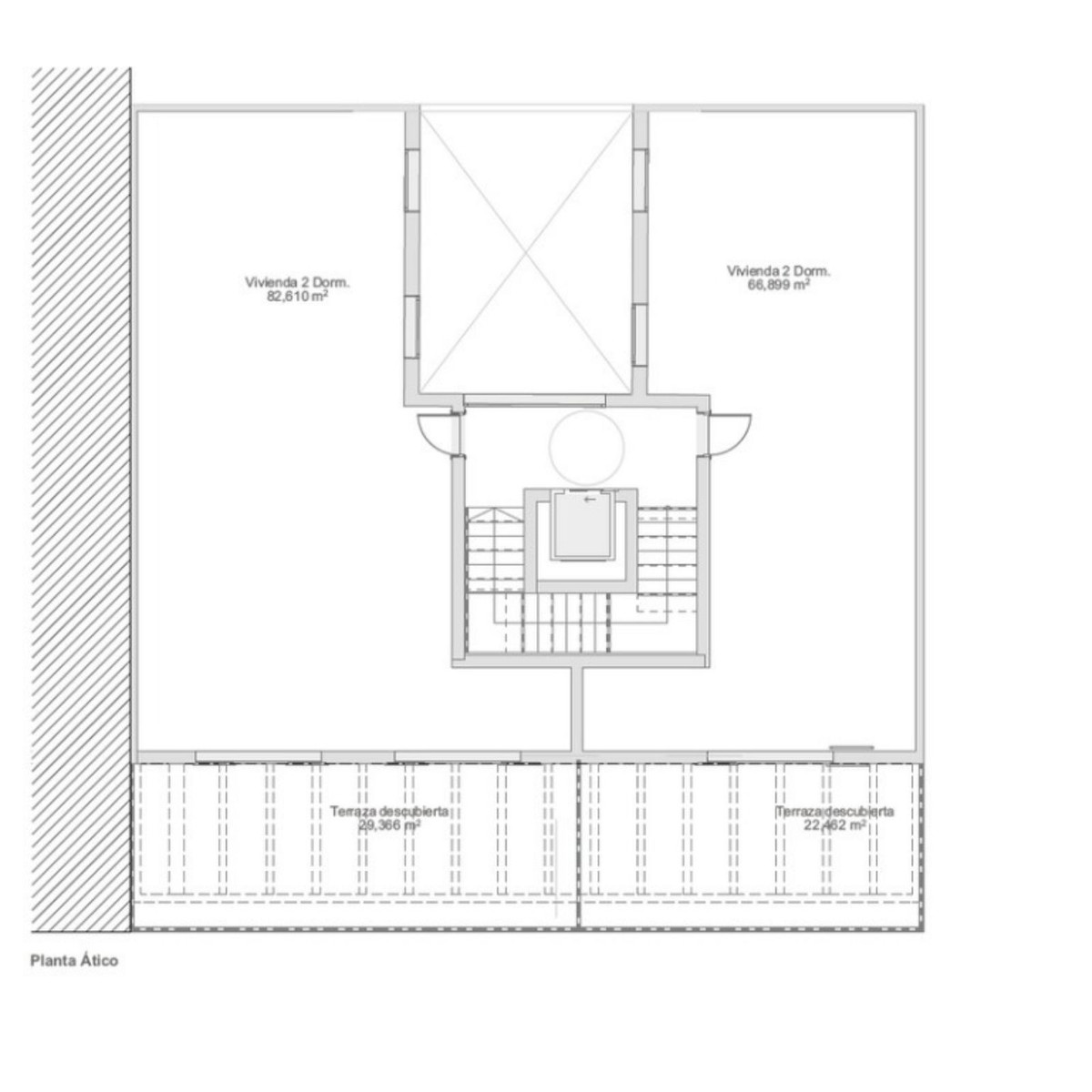
Deze woning biedt een fantastische basis voor een nieuwbouwontwikkeling van 10 moderne appartementen. Het perceel is ruim en het architectonische project is al goedgekeurd, wat het proces versnelt. Je profiteert van een toplocatie midden in Mijas Costa, met alle voorzieningen binnen handbereik. Een perfecte kans voor investeerders die willen groeien in een populaire regio. De combinatie van een aantrekkelijk rendementspotentieel en een levendige omgeving maakt dit aanbod extra interessant. Wacht niet te lang, want zulke projecten zijn zeldzaam!
Over Mijas Costa
Mijas Costa is een geliefde kuststrook bekend om haar ontspannen sfeer en uitstekende ligging tussen Málaga en Marbella. Investeerders waarderen de stabiele vastgoedmarkt en de constante vraag naar tweede woningen. De Costa del Sol biedt warme winters, prachtige stranden en een breed scala aan recreatiemogelijkheden. Málaga als nabijgelegen stad verrast met haar cultuur, luchthaven en economische groei. Spanje combineert een aangenaam klimaat met een gastvrije levensstijl, perfect voor wie wil genieten of rendabel wil investeren. Kortom: Mijas Costa is een toplocatie voor iedereen die waarde zoekt aan de Spaanse kust.
Woning Kenmerken
Ligging
Persoonlijke begeleiding
Bij ons betaalt u als koper géén provisie voor onze diensten als aankoopmakelaar. Wij behoren tot de weinige gecertificeerde aankoopmakelaars in Spanje en hebben meer dan 15 jaar ervaring. Al talloze cliënten hebben wij mogen helpen hun Spaanse droomhuis te vinden.
Een huis kopen - of het nu een tweede woning of investering is - doet u niet elke dag. Daarom bieden wij persoonlijke begeleiding tijdens het hele aankoopproces. Of u nu op zoek bent naar het perfecte vakantiehuis of een slimme investering: wij staan voor u klaar. Van het vinden van uw droomwoning tot het regelen van financiering en advies over de juiste notaris. Wij zijn er voor u.
Unieke investering & locatie
Deze woning biedt een fantastische basis voor een nieuwbouwontwikkeling van 10 moderne appartementen. Het perceel is ruim en het architectonische project is al goedgekeurd, wat het proces versnelt. Je profiteert van een toplocatie midden in Mijas Costa, met alle voorzieningen binnen handbereik. Een perfecte kans voor investeerders die willen groeien in een populaire regio. De combinatie van een aantrekkelijk rendementspotentieel en een levendige omgeving maakt dit aanbod extra interessant. Wacht niet te lang, want zulke projecten zijn zeldzaam!
Over Mijas Costa
Mijas Costa is een geliefde kuststrook bekend om haar ontspannen sfeer en uitstekende ligging tussen Málaga en Marbella. Investeerders waarderen de stabiele vastgoedmarkt en de constante vraag naar tweede woningen. De Costa del Sol biedt warme winters, prachtige stranden en een breed scala aan recreatiemogelijkheden. Málaga als nabijgelegen stad verrast met haar cultuur, luchthaven en economische groei. Spanje combineert een aangenaam klimaat met een gastvrije levensstijl, perfect voor wie wil genieten of rendabel wil investeren. Kortom: Mijas Costa is een toplocatie voor iedereen die waarde zoekt aan de Spaanse kust.
Woning Kenmerken
Ligging
Een online bezichtiging is mogelijk voor deze woning
Spreek een tijd af voor een live video met de makelaar en bekijk de woning vanuit uw woonkamer!
Certified by


Persoonlijke begeleiding
Bij ons betaalt u als koper géén provisie voor onze diensten als aankoopmakelaar. Wij behoren tot de weinige gecertificeerde aankoopmakelaars in Spanje en hebben meer dan 15 jaar ervaring. Al talloze cliënten hebben wij mogen helpen hun Spaanse droomhuis te vinden.
Een huis kopen - of het nu een tweede woning of investering is - doet u niet elke dag. Daarom bieden wij persoonlijke begeleiding tijdens het hele aankoopproces. Of u nu op zoek bent naar het perfecte vakantiehuis of een slimme investering: wij staan voor u klaar. Van het vinden van uw droomwoning tot het regelen van financiering en advies over de juiste notaris. Wij zijn er voor u.









































































































































































































































