


Marbella, Costa del Sol
Gelegen in het hart van Marbella, biedt dit zelfstandige pand van 821 m² op een perceel van 1.110 m² volop potentie. Gebouwd in 1975 en jarenlang handelsruimte, is dit nu een geweldige kans voor wie wil investeren en het pand een nieuw leven wil geven.
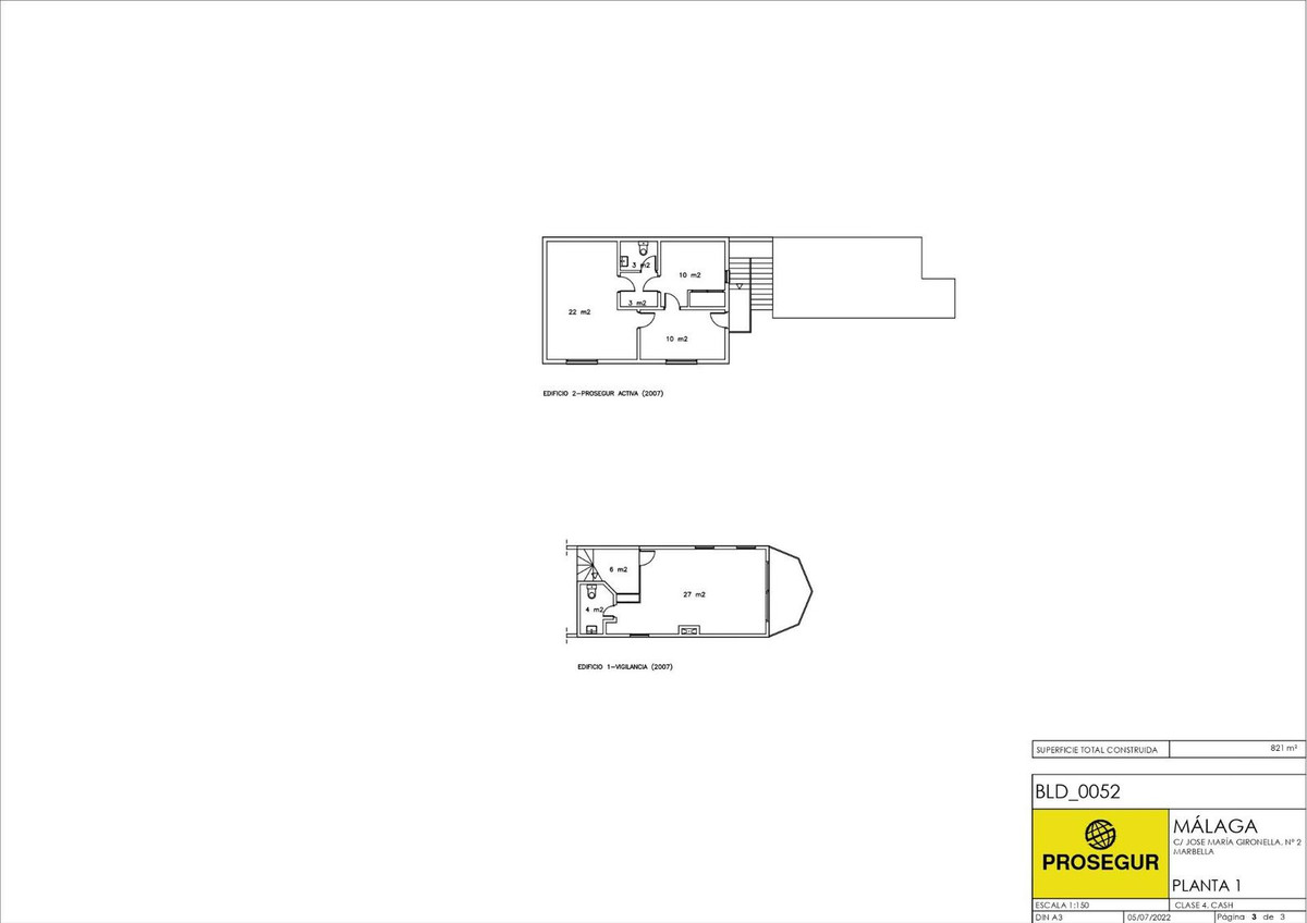
Deze ruime en karaktervolle commerciële ruimte ligt aan de Av Jose María Gironella in de gewilde wijk Huerta Belón. Het pand heeft decennia lang dienstgedaan als kantoren van een gerenommeerd internationaal beveiligingsbedrijf. Weliswaar is het toe aan een grondige renovatie met een geschatte investering van ongeveer 1 miljoen euro, maar de mogelijkheden zijn eindeloos. Zowel woon- als “dotacional” gebruik – denk aan sport, gezondheidszorg en sociale activiteiten – zijn hier toegestaan. Het perceel biedt ook flexibiliteit: het kan worden opgesplitst en gebruikt voor het bouwen van twee aparte villa’s. Dankzij de hoge vraag naar studentenkamers en tijdelijke huurwoningen in de regio, biedt dit pand een aantrekkelijk rendementspotentieel voor slimme investeerders.
Marbella staat bekend als een luxueuze badplaats met een prachtige mix van cultuur, natuur en levendige stranden. Het biedt uitstekende voorzieningen, een mild klimaat en een internationale sfeer. Voor vastgoedinvesteerders en tweede huizenkopers is het een hotspot met sterke huurmarkt en voortdurende waardestijging. De Costa del Sol, met Málaga als bruisend centrum, biedt volop recreatie, gastronomie en een connectie met het hele Spaanse vasteland. Spanje zelf blijft een geliefde bestemming dankzij het zonnige weer, aantrekkelijke lifestyle en stabiele vastgoedmarkt – een ideale plek om te investeren en te genieten.
Bij ons betaalt u als koper géén provisie voor onze diensten als aankoopmakelaar. Wij behoren tot de weinige gecertificeerde aankoopmakelaars in Spanje en hebben meer dan 15 jaar ervaring. Al talloze cliënten hebben wij mogen helpen hun Spaanse droomhuis te vinden.
Een huis kopen - of het nu een tweede woning of investering is - doet u niet elke dag. Daarom bieden wij persoonlijke begeleiding tijdens het hele aankoopproces. Of u nu op zoek bent naar het perfecte vakantiehuis of een slimme investering: wij staan voor u klaar. Van het vinden van uw droomwoning tot het regelen van financiering en advies over de juiste notaris. Wij zijn er voor u.
Deze ruime en karaktervolle commerciële ruimte ligt aan de Av Jose María Gironella in de gewilde wijk Huerta Belón. Het pand heeft decennia lang dienstgedaan als kantoren van een gerenommeerd internationaal beveiligingsbedrijf. Weliswaar is het toe aan een grondige renovatie met een geschatte investering van ongeveer 1 miljoen euro, maar de mogelijkheden zijn eindeloos. Zowel woon- als “dotacional” gebruik – denk aan sport, gezondheidszorg en sociale activiteiten – zijn hier toegestaan. Het perceel biedt ook flexibiliteit: het kan worden opgesplitst en gebruikt voor het bouwen van twee aparte villa’s. Dankzij de hoge vraag naar studentenkamers en tijdelijke huurwoningen in de regio, biedt dit pand een aantrekkelijk rendementspotentieel voor slimme investeerders.
Marbella staat bekend als een luxueuze badplaats met een prachtige mix van cultuur, natuur en levendige stranden. Het biedt uitstekende voorzieningen, een mild klimaat en een internationale sfeer. Voor vastgoedinvesteerders en tweede huizenkopers is het een hotspot met sterke huurmarkt en voortdurende waardestijging. De Costa del Sol, met Málaga als bruisend centrum, biedt volop recreatie, gastronomie en een connectie met het hele Spaanse vasteland. Spanje zelf blijft een geliefde bestemming dankzij het zonnige weer, aantrekkelijke lifestyle en stabiele vastgoedmarkt – een ideale plek om te investeren en te genieten.
Spreek een tijd af voor een live video met de makelaar en bekijk de woning vanuit uw woonkamer!


Bij ons betaalt u als koper géén provisie voor onze diensten als aankoopmakelaar. Wij behoren tot de weinige gecertificeerde aankoopmakelaars in Spanje en hebben meer dan 15 jaar ervaring. Al talloze cliënten hebben wij mogen helpen hun Spaanse droomhuis te vinden.
Een huis kopen - of het nu een tweede woning of investering is - doet u niet elke dag. Daarom bieden wij persoonlijke begeleiding tijdens het hele aankoopproces. Of u nu op zoek bent naar het perfecte vakantiehuis of een slimme investering: wij staan voor u klaar. Van het vinden van uw droomwoning tot het regelen van financiering en advies over de juiste notaris. Wij zijn er voor u.