


Uniek Bouwperceel San Pedro
Marbella, Costa del Sol
Dit fantastische bouwperceel van 500 m² ligt op slechts 850 meter van het strand, direct naast de prestigieuze Guadalmina golfbaan in San Pedro de Alcántara. Perfect voor wie droomt van een rustige, luxe levensstijl aan de Costa del Sol.
Belangrijkste Kenmerken
Details en Kenmerken
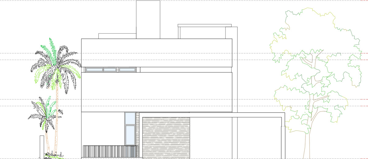
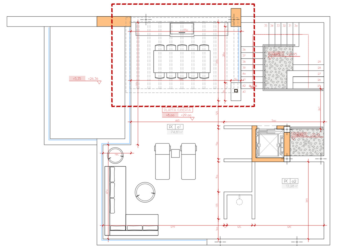
Het perceel heeft een zuidwestelijke oriëntatie waardoor je de hele dag kunt genieten van natuurlijk licht. Met centrale verwarming en houten vloeren als extra’s, biedt dit perceel volop mogelijkheden voor een comfortabele woning. Het is ongemeubileerd, zodat je alles naar eigen wens kunt inrichten. Daarnaast is de locatie zeer rustig en ligt het nabij het strand, uitstekende scholen en het levendige centrum van San Pedro. De bouwdocumentatie is up-to-date en het bouwvoorstel van de gerenommeerde architect Alberto Rodríguez ligt klaar om te worden gevolgd, maar je hebt ook de vrijheid om een eigen ontwerp in te dienen.
Over Marbella
Marbella staat bekend om zijn luxe levensstijl, prachtige stranden en bruisende culturele scene. De Costa del Sol biedt een zonnig klimaat het hele jaar door en combineert spectaculaire natuur met uitstekende golfbanen en gastronomische hoogstandjes. Málaga, als de nabijgelegen internationale hub, zorgt voor uitstekende verbindingen en een rijke historie. Spanje zelf biedt een stabiele vastgoedmarkt, ideaal voor investeerders of een tweede woning, met een ontspannen levensstijl en een warme, gastvrije cultuur.
Woning Kenmerken
Ligging
Persoonlijke begeleiding
Bij ons betaalt u als koper géén provisie voor onze diensten als aankoopmakelaar. Wij behoren tot de weinige gecertificeerde aankoopmakelaars in Spanje en hebben meer dan 15 jaar ervaring. Al talloze cliënten hebben wij mogen helpen hun Spaanse droomhuis te vinden.
Een huis kopen - of het nu een tweede woning of investering is - doet u niet elke dag. Daarom bieden wij persoonlijke begeleiding tijdens het hele aankoopproces. Of u nu op zoek bent naar het perfecte vakantiehuis of een slimme investering: wij staan voor u klaar. Van het vinden van uw droomwoning tot het regelen van financiering en advies over de juiste notaris. Wij zijn er voor u.
Details en Kenmerken
Het perceel heeft een zuidwestelijke oriëntatie waardoor je de hele dag kunt genieten van natuurlijk licht. Met centrale verwarming en houten vloeren als extra’s, biedt dit perceel volop mogelijkheden voor een comfortabele woning. Het is ongemeubileerd, zodat je alles naar eigen wens kunt inrichten. Daarnaast is de locatie zeer rustig en ligt het nabij het strand, uitstekende scholen en het levendige centrum van San Pedro. De bouwdocumentatie is up-to-date en het bouwvoorstel van de gerenommeerde architect Alberto Rodríguez ligt klaar om te worden gevolgd, maar je hebt ook de vrijheid om een eigen ontwerp in te dienen.
Over Marbella
Marbella staat bekend om zijn luxe levensstijl, prachtige stranden en bruisende culturele scene. De Costa del Sol biedt een zonnig klimaat het hele jaar door en combineert spectaculaire natuur met uitstekende golfbanen en gastronomische hoogstandjes. Málaga, als de nabijgelegen internationale hub, zorgt voor uitstekende verbindingen en een rijke historie. Spanje zelf biedt een stabiele vastgoedmarkt, ideaal voor investeerders of een tweede woning, met een ontspannen levensstijl en een warme, gastvrije cultuur.
Woning Kenmerken
Ligging
Een online bezichtiging is mogelijk voor deze woning
Spreek een tijd af voor een live video met de makelaar en bekijk de woning vanuit uw woonkamer!
Certified by


Persoonlijke begeleiding
Bij ons betaalt u als koper géén provisie voor onze diensten als aankoopmakelaar. Wij behoren tot de weinige gecertificeerde aankoopmakelaars in Spanje en hebben meer dan 15 jaar ervaring. Al talloze cliënten hebben wij mogen helpen hun Spaanse droomhuis te vinden.
Een huis kopen - of het nu een tweede woning of investering is - doet u niet elke dag. Daarom bieden wij persoonlijke begeleiding tijdens het hele aankoopproces. Of u nu op zoek bent naar het perfecte vakantiehuis of een slimme investering: wij staan voor u klaar. Van het vinden van uw droomwoning tot het regelen van financiering en advies over de juiste notaris. Wij zijn er voor u.































































































































































































































































