


Marbella, Costa del Sol
Unieke kans in de bekende wijk "El Barrio", op slechts een paar meter van het strand. Dit gebouw van 265 m² verdeeld over drie verdiepingen heeft een terras en solarium, ideaal voor een boutique hotel of B&B dicht bij winkels, bars en alle voorzieningen.
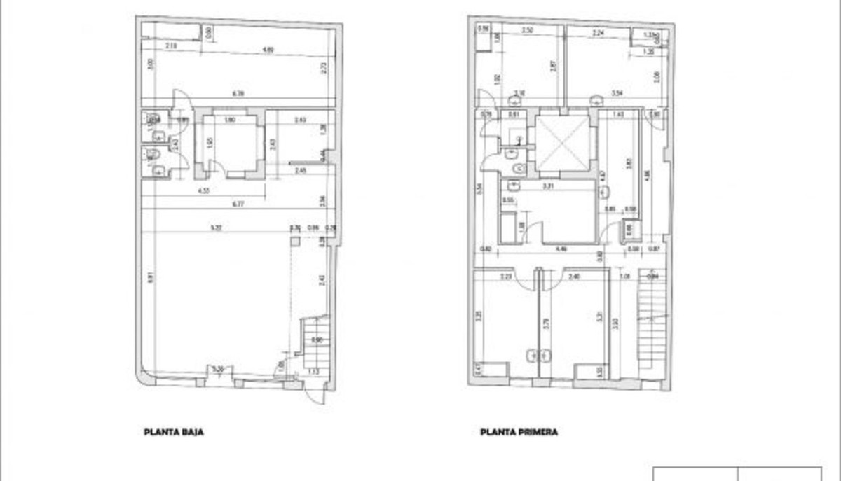
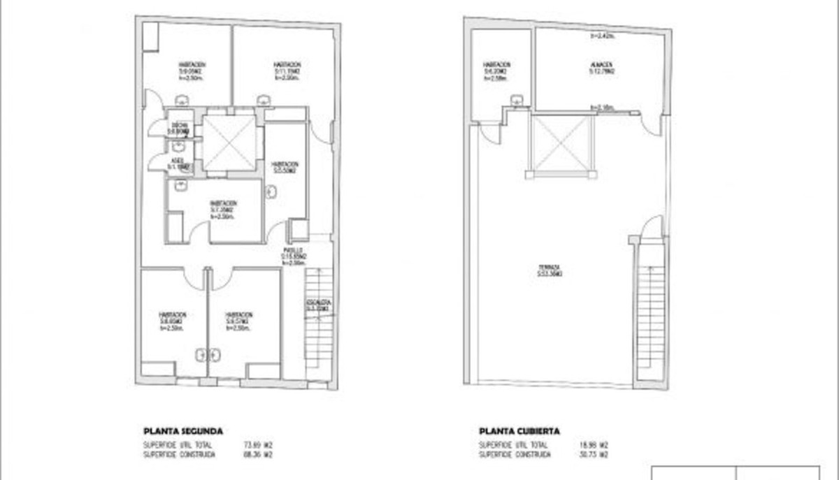
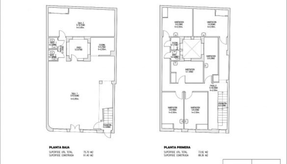
Dit ruime gebouw heeft een perceel van 88 m² en bestaat uit een begane grond plus twee verdiepingen. Met in totaal 265 m² aan woonoppervlakte biedt het volop mogelijkheden om het geheel naar eigen wens te moderniseren. Het terras en het solarium zorgen voor heerlijke buitenruimtes om van het Mediterrane klimaat te genieten. De locatie is perfect voor horeca, zoals een boutique hotel of bed & breakfast, dankzij de nabijheid van het strand en alle lokale voorzieningen.
Marbella staat bekend om zijn luxe levensstijl, prachtige stranden en uitstekende investeringsmogelijkheden. De stad combineert authentiek Andalusisch charme met moderne voorzieningen. Aan de Costa del Sol geniet je van een zonnig klimaat het hele jaar door, wat het aantrekkelijk maakt als tweede verblijf. Málaga biedt een bruisende cultuur en een internationale luchthaven, wat deze regio perfect maakt voor vastgoedinvesteerders en vakantiegangers die willen profiteren van Spanje’s beste kanten.
Bij ons betaalt u als koper géén provisie voor onze diensten als aankoopmakelaar. Wij behoren tot de weinige gecertificeerde aankoopmakelaars in Spanje en hebben meer dan 15 jaar ervaring. Al talloze cliënten hebben wij mogen helpen hun Spaanse droomhuis te vinden.
Een huis kopen - of het nu een tweede woning of investering is - doet u niet elke dag. Daarom bieden wij persoonlijke begeleiding tijdens het hele aankoopproces. Of u nu op zoek bent naar het perfecte vakantiehuis of een slimme investering: wij staan voor u klaar. Van het vinden van uw droomwoning tot het regelen van financiering en advies over de juiste notaris. Wij zijn er voor u.
Dit ruime gebouw heeft een perceel van 88 m² en bestaat uit een begane grond plus twee verdiepingen. Met in totaal 265 m² aan woonoppervlakte biedt het volop mogelijkheden om het geheel naar eigen wens te moderniseren. Het terras en het solarium zorgen voor heerlijke buitenruimtes om van het Mediterrane klimaat te genieten. De locatie is perfect voor horeca, zoals een boutique hotel of bed & breakfast, dankzij de nabijheid van het strand en alle lokale voorzieningen.
Marbella staat bekend om zijn luxe levensstijl, prachtige stranden en uitstekende investeringsmogelijkheden. De stad combineert authentiek Andalusisch charme met moderne voorzieningen. Aan de Costa del Sol geniet je van een zonnig klimaat het hele jaar door, wat het aantrekkelijk maakt als tweede verblijf. Málaga biedt een bruisende cultuur en een internationale luchthaven, wat deze regio perfect maakt voor vastgoedinvesteerders en vakantiegangers die willen profiteren van Spanje’s beste kanten.
Spreek een tijd af voor een live video met de makelaar en bekijk de woning vanuit uw woonkamer!


Bij ons betaalt u als koper géén provisie voor onze diensten als aankoopmakelaar. Wij behoren tot de weinige gecertificeerde aankoopmakelaars in Spanje en hebben meer dan 15 jaar ervaring. Al talloze cliënten hebben wij mogen helpen hun Spaanse droomhuis te vinden.
Een huis kopen - of het nu een tweede woning of investering is - doet u niet elke dag. Daarom bieden wij persoonlijke begeleiding tijdens het hele aankoopproces. Of u nu op zoek bent naar het perfecte vakantiehuis of een slimme investering: wij staan voor u klaar. Van het vinden van uw droomwoning tot het regelen van financiering en advies over de juiste notaris. Wij zijn er voor u.