


Charmant Pand in Malaga Centrum
Málaga Centro, Costa del Sol
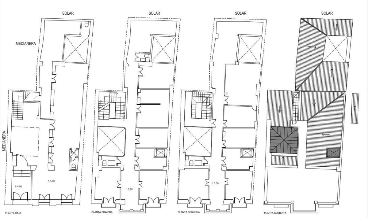
Ontdek een uniek gebouw in het historische centrum van Malaga, met traditionele architectuur en vastgelegd in het Malagaboek van architectuur. Dit pand biedt drie verdiepingen plus een dakterras met een spectaculair panoramisch uitzicht op de stad, de kathedraal en de omliggende bergen.
Belangrijkste Kenmerken
Eigenschappen en Mogelijkheden
Dit pand heeft enorme potentie dankzij de hoge plafonds en ruime vertrekken, ideaal voor een luxe renovatie. Verdeel over drie etages geniet je hier van volop leefruimte. Het dakterras is perfect voor momenten met uitzicht over Malaga’s iconische kathedraal en de bergen. Een verborgen parel die wacht op jouw persoonlijke touch.
Over Málaga Centro
Málaga Centro is het kloppende hart van de stad, bekend om zijn historische charme en levendige cultuur. Voor vastgoedinvesteerders en huizenkopers betekent dit een mix van authentieke sfeer met moderne faciliteiten. De Costa del Sol biedt het hele jaar door zon, stranden en een ontspannen levensstijl, ideaal voor tweede woningen.
De stad Málaga combineert een rijke geschiedenis met een groeiende economie en uitstekende infrastructuur, perfect voor wie wil investeren in Spanje. Hier geniet je van een mediterrane levensstijl met tal van culturele evenementen, gastronomie en natuur dichtbij.
Woning Kenmerken
Ligging
Persoonlijke begeleiding
Bij ons betaalt u als koper géén provisie voor onze diensten als aankoopmakelaar. Wij behoren tot de weinige gecertificeerde aankoopmakelaars in Spanje en hebben meer dan 15 jaar ervaring. Al talloze cliënten hebben wij mogen helpen hun Spaanse droomhuis te vinden.
Een huis kopen - of het nu een tweede woning of investering is - doet u niet elke dag. Daarom bieden wij persoonlijke begeleiding tijdens het hele aankoopproces. Of u nu op zoek bent naar het perfecte vakantiehuis of een slimme investering: wij staan voor u klaar. Van het vinden van uw droomwoning tot het regelen van financiering en advies over de juiste notaris. Wij zijn er voor u.
Eigenschappen en Mogelijkheden
Dit pand heeft enorme potentie dankzij de hoge plafonds en ruime vertrekken, ideaal voor een luxe renovatie. Verdeel over drie etages geniet je hier van volop leefruimte. Het dakterras is perfect voor momenten met uitzicht over Malaga’s iconische kathedraal en de bergen. Een verborgen parel die wacht op jouw persoonlijke touch.
Over Málaga Centro
Málaga Centro is het kloppende hart van de stad, bekend om zijn historische charme en levendige cultuur. Voor vastgoedinvesteerders en huizenkopers betekent dit een mix van authentieke sfeer met moderne faciliteiten. De Costa del Sol biedt het hele jaar door zon, stranden en een ontspannen levensstijl, ideaal voor tweede woningen.
De stad Málaga combineert een rijke geschiedenis met een groeiende economie en uitstekende infrastructuur, perfect voor wie wil investeren in Spanje. Hier geniet je van een mediterrane levensstijl met tal van culturele evenementen, gastronomie en natuur dichtbij.
Woning Kenmerken
Ligging
Een online bezichtiging is mogelijk voor deze woning
Spreek een tijd af voor een live video met de makelaar en bekijk de woning vanuit uw woonkamer!
Certified by


Persoonlijke begeleiding
Bij ons betaalt u als koper géén provisie voor onze diensten als aankoopmakelaar. Wij behoren tot de weinige gecertificeerde aankoopmakelaars in Spanje en hebben meer dan 15 jaar ervaring. Al talloze cliënten hebben wij mogen helpen hun Spaanse droomhuis te vinden.
Een huis kopen - of het nu een tweede woning of investering is - doet u niet elke dag. Daarom bieden wij persoonlijke begeleiding tijdens het hele aankoopproces. Of u nu op zoek bent naar het perfecte vakantiehuis of een slimme investering: wij staan voor u klaar. Van het vinden van uw droomwoning tot het regelen van financiering en advies over de juiste notaris. Wij zijn er voor u.



































































































































































