


Strandvilla te Oost Marbella
Las Chapas, Costa del Sol
Unieke kans om een prachtige villa aan het strand in Oost Marbella te kopen. Momenteel in aanbouw, klaar in oktober 2025. Geniet vanaf het dakterras van adembenemend zee- en bergzicht. Deze villa ligt op een bijna 1000 m² groot, zonnig en vlak perceel.
Belangrijkste Kenmerken
Villa Details & Indeling
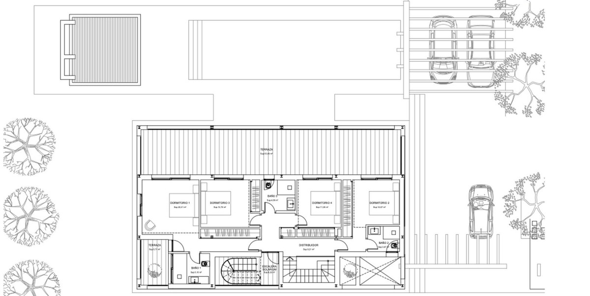
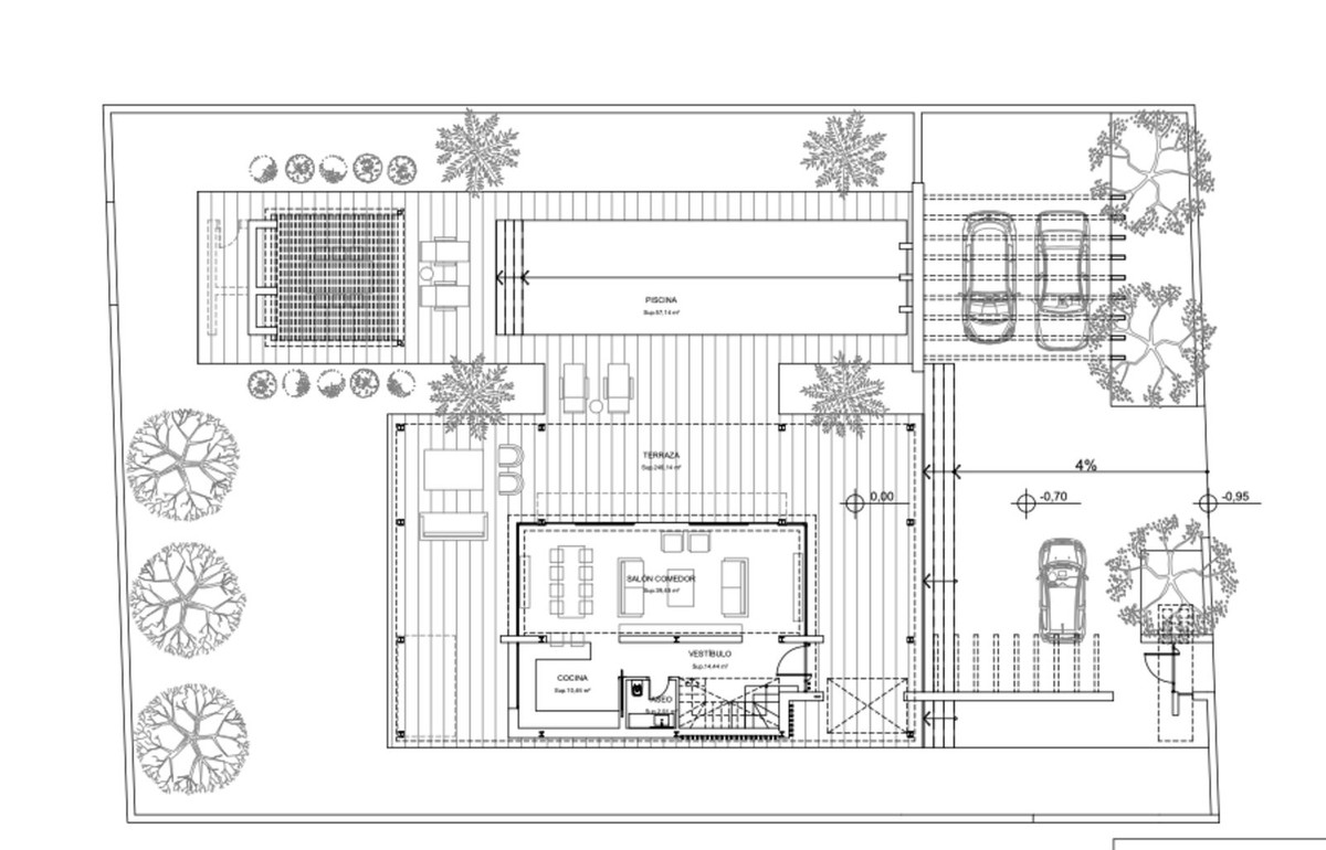
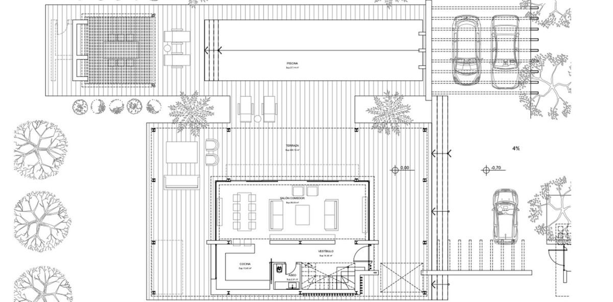
Deze moderne villa is verdeeld over twee verdiepingen. Bij binnenkomst stap je in een ruime woonkamer en eetkamer die naadloos overlopen naar het overdekte terras en privézwembad – perfect voor zonnige dagen en gezellige avonden. De open keuken is praktisch ontworpen, inclusief een aparte wasruimte en een gastentoilet op de begane grond. Op de eerste verdieping bevinden zich vier slaapkamers en drie badkamers, waarbij elke slaapkamer directe toegang heeft tot het terras voor maximaal buitenleven en comfort. Het dakterras biedt geweldige uitzichten op de zee en de omliggende bergen.
Over Las Chapas
Las Chapas is een gewilde woonwijk in Oost Marbella, bekend om zijn rustige sfeer en nabijheid van het strand. Ideaal voor investeerders en kopers van een tweede huis dankzij de exclusieve ligging en uitstekende voorzieningen. De Costa del Sol, met haar milde klimaat en levendige cultuur, trekt het hele jaar door bezoekers en bewoners. Málaga, als bruisende stad met een rijke geschiedenis en moderne faciliteiten, biedt bovendien een ideale combinatie van ontspanning en stedelijk leven. Spanje blijft een toplocatie voor wie wil genieten van de zon, zee en een ontspannen levensstijl.
Woning Kenmerken
Ligging
Persoonlijke begeleiding
Bij ons betaalt u als koper géén provisie voor onze diensten als aankoopmakelaar. Wij behoren tot de weinige gecertificeerde aankoopmakelaars in Spanje en hebben meer dan 15 jaar ervaring. Al talloze cliënten hebben wij mogen helpen hun Spaanse droomhuis te vinden.
Een huis kopen - of het nu een tweede woning of investering is - doet u niet elke dag. Daarom bieden wij persoonlijke begeleiding tijdens het hele aankoopproces. Of u nu op zoek bent naar het perfecte vakantiehuis of een slimme investering: wij staan voor u klaar. Van het vinden van uw droomwoning tot het regelen van financiering en advies over de juiste notaris. Wij zijn er voor u.
Villa Details & Indeling
Deze moderne villa is verdeeld over twee verdiepingen. Bij binnenkomst stap je in een ruime woonkamer en eetkamer die naadloos overlopen naar het overdekte terras en privézwembad – perfect voor zonnige dagen en gezellige avonden. De open keuken is praktisch ontworpen, inclusief een aparte wasruimte en een gastentoilet op de begane grond. Op de eerste verdieping bevinden zich vier slaapkamers en drie badkamers, waarbij elke slaapkamer directe toegang heeft tot het terras voor maximaal buitenleven en comfort. Het dakterras biedt geweldige uitzichten op de zee en de omliggende bergen.
Over Las Chapas
Las Chapas is een gewilde woonwijk in Oost Marbella, bekend om zijn rustige sfeer en nabijheid van het strand. Ideaal voor investeerders en kopers van een tweede huis dankzij de exclusieve ligging en uitstekende voorzieningen. De Costa del Sol, met haar milde klimaat en levendige cultuur, trekt het hele jaar door bezoekers en bewoners. Málaga, als bruisende stad met een rijke geschiedenis en moderne faciliteiten, biedt bovendien een ideale combinatie van ontspanning en stedelijk leven. Spanje blijft een toplocatie voor wie wil genieten van de zon, zee en een ontspannen levensstijl.
Woning Kenmerken
Ligging
Een online bezichtiging is mogelijk voor deze woning
Spreek een tijd af voor een live video met de makelaar en bekijk de woning vanuit uw woonkamer!
Certified by


Persoonlijke begeleiding
Bij ons betaalt u als koper géén provisie voor onze diensten als aankoopmakelaar. Wij behoren tot de weinige gecertificeerde aankoopmakelaars in Spanje en hebben meer dan 15 jaar ervaring. Al talloze cliënten hebben wij mogen helpen hun Spaanse droomhuis te vinden.
Een huis kopen - of het nu een tweede woning of investering is - doet u niet elke dag. Daarom bieden wij persoonlijke begeleiding tijdens het hele aankoopproces. Of u nu op zoek bent naar het perfecte vakantiehuis of een slimme investering: wij staan voor u klaar. Van het vinden van uw droomwoning tot het regelen van financiering en advies over de juiste notaris. Wij zijn er voor u.























































































































































