


Charmante Villa in La Granadella
Javea, Costa Blanca
Ontdek deze prachtige mediterrane villa nabij La Granadella strand in Jávea, met schitterend uitzicht op het natuurpark. Geniet van rust, comfort en een perfecte locatie vlak bij zee en lokale voorzieningen.
Belangrijkste Kenmerken
Ruimtelijke Indeling & Kenmerken
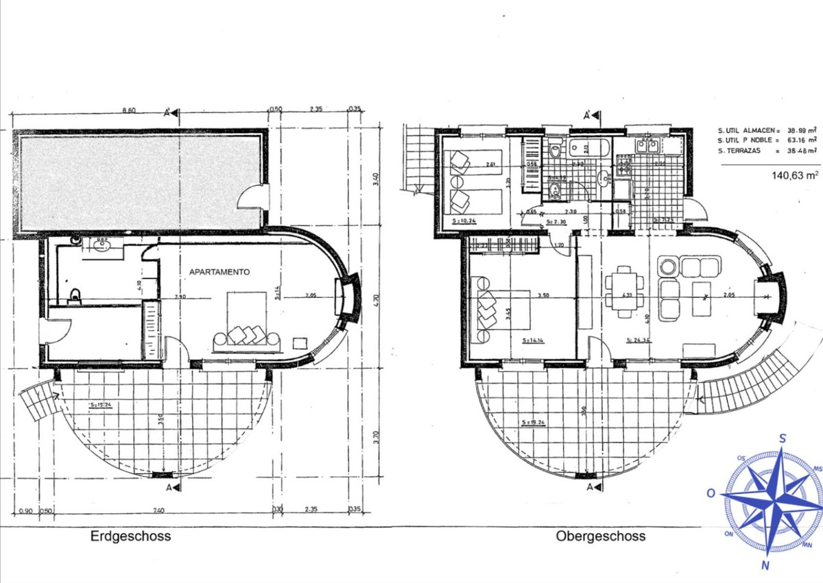
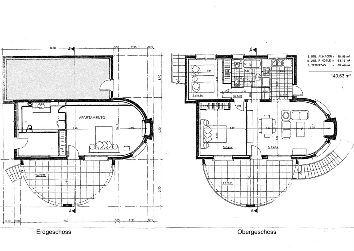
Deze charmante chalet heeft een woonoppervlak van 164 m² en beschikt over 3 comfortabele tweepersoons slaapkamers en 2 badkamers. Op de hoofdverdieping vind je een ruime woonkamer met open haard, een open keuken en een zonnig overdekt terras met panoramisch uitzicht op het natuurpark. De benedenverdieping herbergt een gastappartement met grote kamer, eigen terras en badkamer en-suite. Het perceel van 814 m² biedt een privézwembad, een buitenkeuken voor de zomer, een wasruimte en een onderhoudsvriendelijke tuin – allemaal ontworpen om optimaal te genieten van het mediterrane klimaat en het buitenleven.
Over Jávea
Jávea is een charmante kustplaats aan de Costa Blanca, bekend om zijn prachtige stranden, rustige natuurparken en een gastvrije sfeer. De ligging biedt een perfecte balans tussen ontspanning en een bruisende sociale scene met talrijke restaurants en winkels. Dankzij de nabijheid van Alicante en het hele Costa Blanca-gebied, is het een uitstekende keuze voor zowel investeerders als liefhebbers van een tweede woning in Spanje.
Woning Kenmerken
Ligging
Persoonlijke begeleiding
Bij ons betaalt u als koper géén provisie voor onze diensten als aankoopmakelaar. Wij behoren tot de weinige gecertificeerde aankoopmakelaars in Spanje en hebben meer dan 15 jaar ervaring. Al talloze cliënten hebben wij mogen helpen hun Spaanse droomhuis te vinden.
Een huis kopen - of het nu een tweede woning of investering is - doet u niet elke dag. Daarom bieden wij persoonlijke begeleiding tijdens het hele aankoopproces. Of u nu op zoek bent naar het perfecte vakantiehuis of een slimme investering: wij staan voor u klaar. Van het vinden van uw droomwoning tot het regelen van financiering en advies over de juiste notaris. Wij zijn er voor u.
Ruimtelijke Indeling & Kenmerken
Deze charmante chalet heeft een woonoppervlak van 164 m² en beschikt over 3 comfortabele tweepersoons slaapkamers en 2 badkamers. Op de hoofdverdieping vind je een ruime woonkamer met open haard, een open keuken en een zonnig overdekt terras met panoramisch uitzicht op het natuurpark. De benedenverdieping herbergt een gastappartement met grote kamer, eigen terras en badkamer en-suite. Het perceel van 814 m² biedt een privézwembad, een buitenkeuken voor de zomer, een wasruimte en een onderhoudsvriendelijke tuin – allemaal ontworpen om optimaal te genieten van het mediterrane klimaat en het buitenleven.
Over Jávea
Jávea is een charmante kustplaats aan de Costa Blanca, bekend om zijn prachtige stranden, rustige natuurparken en een gastvrije sfeer. De ligging biedt een perfecte balans tussen ontspanning en een bruisende sociale scene met talrijke restaurants en winkels. Dankzij de nabijheid van Alicante en het hele Costa Blanca-gebied, is het een uitstekende keuze voor zowel investeerders als liefhebbers van een tweede woning in Spanje.
Woning Kenmerken
Ligging
Een online bezichtiging is mogelijk voor deze woning
Spreek een tijd af voor een live video met de makelaar en bekijk de woning vanuit uw woonkamer!
Certified by


Persoonlijke begeleiding
Bij ons betaalt u als koper géén provisie voor onze diensten als aankoopmakelaar. Wij behoren tot de weinige gecertificeerde aankoopmakelaars in Spanje en hebben meer dan 15 jaar ervaring. Al talloze cliënten hebben wij mogen helpen hun Spaanse droomhuis te vinden.
Een huis kopen - of het nu een tweede woning of investering is - doet u niet elke dag. Daarom bieden wij persoonlijke begeleiding tijdens het hele aankoopproces. Of u nu op zoek bent naar het perfecte vakantiehuis of een slimme investering: wij staan voor u klaar. Van het vinden van uw droomwoning tot het regelen van financiering en advies over de juiste notaris. Wij zijn er voor u.























































































































































