


Fuente Álamo, Costa Cálida
Ontdek prachtige halfvrijstaande villa’s in Fuente Álamo, Murcia. Geniet van ruime woonruimtes, moderne voorzieningen en een rustige ligging dichtbij de kust. Perfect voor wie comfort en stijl zoekt in Zuid-Spanje.
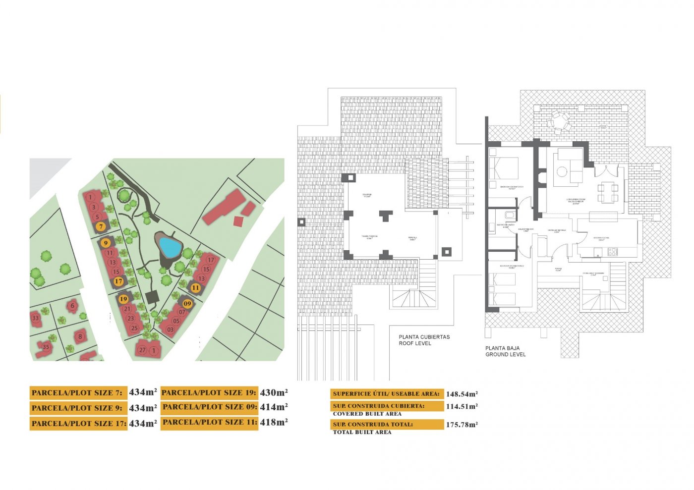
Deze halfvrijstaande villa is direct beschikbaar en biedt 2 slaapkamers en 1 badkamer met een praktische, aparte keuken. De ruime woonkamer heeft openslaande deuren naar een gezellige overdekte veranda, plus een deels overdekt dakterras van 45 m² om volop van het Spaanse klimaat te genieten. De woning beschikt over een eigen tuin, privéparkeerplaats en een berging. Parkeerplek voor één auto is inbegrepen. De villa ligt op slechts 7,5 km van het strand en dichtbij golfresorts, ideaal voor liefhebbers van ontspanning en sport. De locatie combineert rustige, landelijke sfeer met een toegankelijke stedelijke omgeving. Er is al airconditioning voorgeïnstalleerd en de totale gebruiksoppervlakte bedraagt 148 m². Optioneel kunt u een privé zwembad toevoegen.
Fuente Álamo is een charmant stadje in de regio Murcia, op zo’n 30 minuten van luchthaven Murcia-Corvera. Met zijn ligging tussen de bergen en vlak bij de Middellandse Zee, biedt het een perfecte mix van landelijke rust en kustnatuur. De buurt is populair voor investeerders en tweede woningkopers door de snelle verbindingen, vriendelijke inwoners en kwalitatieve woningaanbod. Costa Cálida, bekend om zijn milde klimaat en prachtige baaien, is een paradijs voor golfliefhebbers en strandgangers. Murcia combineert cultuur, gastronomie en natuur, waardoor het een topbestemming is voor wonen en recreëren. Een investering hier betekent genieten van de Spaanse levensstijl zonder de drukte van de grote steden.
Bij ons betaalt u als koper géén provisie voor onze diensten als aankoopmakelaar. Wij behoren tot de weinige gecertificeerde aankoopmakelaars in Spanje en hebben meer dan 15 jaar ervaring. Al talloze cliënten hebben wij mogen helpen hun Spaanse droomhuis te vinden.
Een huis kopen - of het nu een tweede woning of investering is - doet u niet elke dag. Daarom bieden wij persoonlijke begeleiding tijdens het hele aankoopproces. Of u nu op zoek bent naar het perfecte vakantiehuis of een slimme investering: wij staan voor u klaar. Van het vinden van uw droomwoning tot het regelen van financiering en advies over de juiste notaris. Wij zijn er voor u.
Deze halfvrijstaande villa is direct beschikbaar en biedt 2 slaapkamers en 1 badkamer met een praktische, aparte keuken. De ruime woonkamer heeft openslaande deuren naar een gezellige overdekte veranda, plus een deels overdekt dakterras van 45 m² om volop van het Spaanse klimaat te genieten. De woning beschikt over een eigen tuin, privéparkeerplaats en een berging. Parkeerplek voor één auto is inbegrepen. De villa ligt op slechts 7,5 km van het strand en dichtbij golfresorts, ideaal voor liefhebbers van ontspanning en sport. De locatie combineert rustige, landelijke sfeer met een toegankelijke stedelijke omgeving. Er is al airconditioning voorgeïnstalleerd en de totale gebruiksoppervlakte bedraagt 148 m². Optioneel kunt u een privé zwembad toevoegen.
Fuente Álamo is een charmant stadje in de regio Murcia, op zo’n 30 minuten van luchthaven Murcia-Corvera. Met zijn ligging tussen de bergen en vlak bij de Middellandse Zee, biedt het een perfecte mix van landelijke rust en kustnatuur. De buurt is populair voor investeerders en tweede woningkopers door de snelle verbindingen, vriendelijke inwoners en kwalitatieve woningaanbod. Costa Cálida, bekend om zijn milde klimaat en prachtige baaien, is een paradijs voor golfliefhebbers en strandgangers. Murcia combineert cultuur, gastronomie en natuur, waardoor het een topbestemming is voor wonen en recreëren. Een investering hier betekent genieten van de Spaanse levensstijl zonder de drukte van de grote steden.
Spreek een tijd af voor een live video met de makelaar en bekijk de woning vanuit uw woonkamer!


Bij ons betaalt u als koper géén provisie voor onze diensten als aankoopmakelaar. Wij behoren tot de weinige gecertificeerde aankoopmakelaars in Spanje en hebben meer dan 15 jaar ervaring. Al talloze cliënten hebben wij mogen helpen hun Spaanse droomhuis te vinden.
Een huis kopen - of het nu een tweede woning of investering is - doet u niet elke dag. Daarom bieden wij persoonlijke begeleiding tijdens het hele aankoopproces. Of u nu op zoek bent naar het perfecte vakantiehuis of een slimme investering: wij staan voor u klaar. Van het vinden van uw droomwoning tot het regelen van financiering en advies over de juiste notaris. Wij zijn er voor u.