


Ciudad Quesada, Costa Blanca
Ontdek deze prachtige villa in Residencial Oceanic, Ciudad Quesada. Met drie verdiepingen, een privé zwembad en moderne afwerking biedt dit huis comfort en stijl dichtbij golf, stranden en lokale voorzieningen.
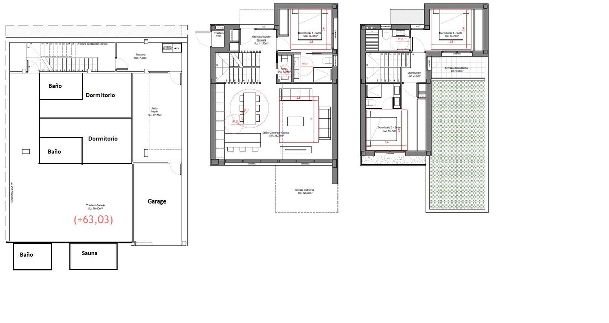
Deze ruime villa beschikt over een privé zwembad en diverse terrassen, perfect om te ontspannen of gasten te ontvangen. De woning is volledig gemeubileerd, met airconditioning en centrale verwarming voor optimaal comfort. Op de begane grond vind je een grote woonkamer met open keuken, een slaapkamer met en-suite badkamer, hal en gastentoilet. Vanuit de woonkamer loop je direct het privéterras en de tuin in met sociale ruimtes. Boven zijn er twee slaapkamers met eigen badkamer en één met balkon. In de kelder bevinden zich nog twee slaapkamers met eigen badkamer, een ruime familiekamer met sauna, wasruimte, berging en garage. Compleet afgewerkt in een moderne, luxueuze stijl, gebouwd in 2019.
Ciudad Quesada is een levendige gemeenschap met het hele jaar door activiteiten en voorzieningen. Denk aan talloze restaurants, bars, winkels en recreatiemogelijkheden zoals golf, mini-golf, bowling, wandelroutes en waterparken. De buurt is perfect voor alle leeftijden en beschikt zelfs over een Noorse school. Bovendien liggen prachtige stranden en steden zoals Torrevieja en Guardamar binnen tien minuten rijden. Dit maakt Ciudad Quesada ideaal voor kopers die op zoek zijn naar een tweede huis of investering aan de Costa Blanca.
Bij ons betaalt u als koper géén provisie voor onze diensten als aankoopmakelaar. Wij behoren tot de weinige gecertificeerde aankoopmakelaars in Spanje en hebben meer dan 15 jaar ervaring. Al talloze cliënten hebben wij mogen helpen hun Spaanse droomhuis te vinden.
Een huis kopen - of het nu een tweede woning of investering is - doet u niet elke dag. Daarom bieden wij persoonlijke begeleiding tijdens het hele aankoopproces. Of u nu op zoek bent naar het perfecte vakantiehuis of een slimme investering: wij staan voor u klaar. Van het vinden van uw droomwoning tot het regelen van financiering en advies over de juiste notaris. Wij zijn er voor u.
Deze ruime villa beschikt over een privé zwembad en diverse terrassen, perfect om te ontspannen of gasten te ontvangen. De woning is volledig gemeubileerd, met airconditioning en centrale verwarming voor optimaal comfort. Op de begane grond vind je een grote woonkamer met open keuken, een slaapkamer met en-suite badkamer, hal en gastentoilet. Vanuit de woonkamer loop je direct het privéterras en de tuin in met sociale ruimtes. Boven zijn er twee slaapkamers met eigen badkamer en één met balkon. In de kelder bevinden zich nog twee slaapkamers met eigen badkamer, een ruime familiekamer met sauna, wasruimte, berging en garage. Compleet afgewerkt in een moderne, luxueuze stijl, gebouwd in 2019.
Ciudad Quesada is een levendige gemeenschap met het hele jaar door activiteiten en voorzieningen. Denk aan talloze restaurants, bars, winkels en recreatiemogelijkheden zoals golf, mini-golf, bowling, wandelroutes en waterparken. De buurt is perfect voor alle leeftijden en beschikt zelfs over een Noorse school. Bovendien liggen prachtige stranden en steden zoals Torrevieja en Guardamar binnen tien minuten rijden. Dit maakt Ciudad Quesada ideaal voor kopers die op zoek zijn naar een tweede huis of investering aan de Costa Blanca.
Spreek een tijd af voor een live video met de makelaar en bekijk de woning vanuit uw woonkamer!


Bij ons betaalt u als koper géén provisie voor onze diensten als aankoopmakelaar. Wij behoren tot de weinige gecertificeerde aankoopmakelaars in Spanje en hebben meer dan 15 jaar ervaring. Al talloze cliënten hebben wij mogen helpen hun Spaanse droomhuis te vinden.
Een huis kopen - of het nu een tweede woning of investering is - doet u niet elke dag. Daarom bieden wij persoonlijke begeleiding tijdens het hele aankoopproces. Of u nu op zoek bent naar het perfecte vakantiehuis of een slimme investering: wij staan voor u klaar. Van het vinden van uw droomwoning tot het regelen van financiering en advies over de juiste notaris. Wij zijn er voor u.