


Cancelada, Costa del Sol
Te koop: een prachtig, volledig gerenoveerd huis van 151,54 m² in het rustige Cancelada, Estepona. Met 4 slaapkamers, een zonneterras en panoramisch zeezicht, ideaal voor gezinnen of als investering aan de Costa del Sol.
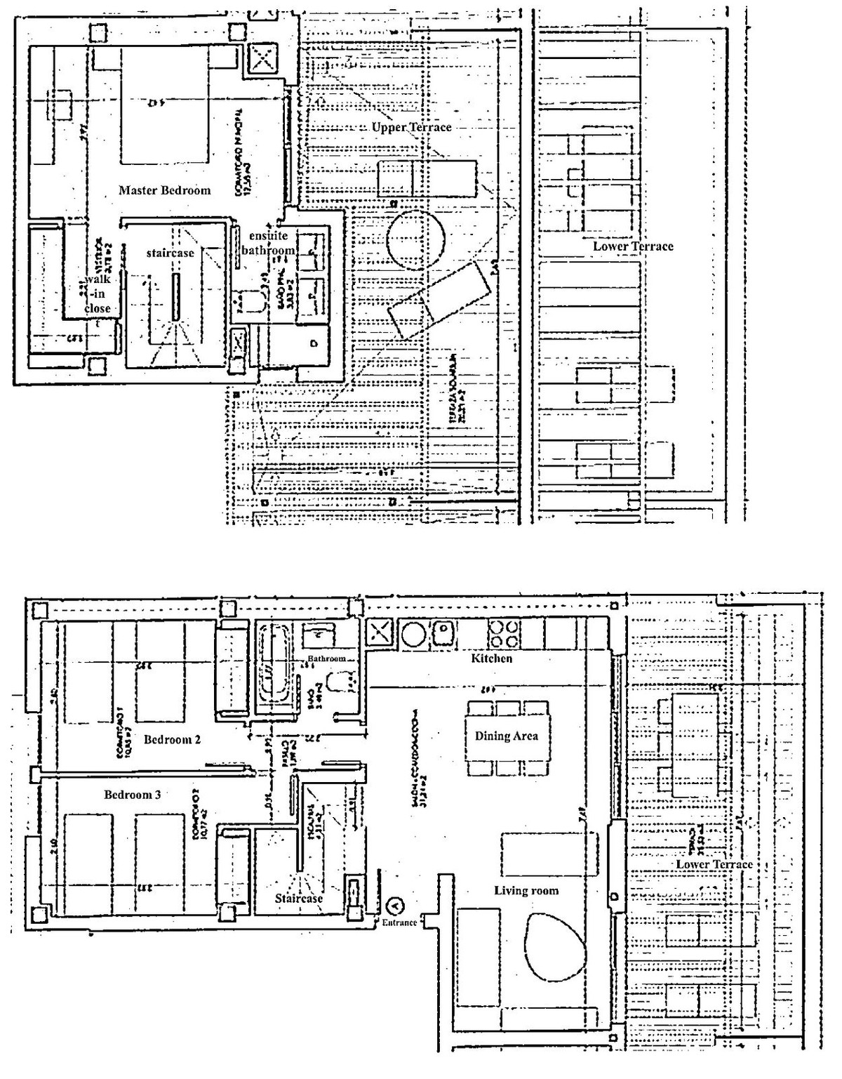
Dit mooie huis is verdeeld over drie verdiepingen en beschikt over 4 slaapkamers, waarvan sommige met ingebouwde kasten, een gezellige woon-eetkamer met open haard en een gastentoilet. De keuken is volledig uitgerust en er is een badkamer aanwezig. Geniet van zowel een voor- als een privé binnenpatio. Op het terras met zonneterras heb je een adembenemend panoramisch uitzicht op zee dat tot aan de horizon reikt.
Het is toegestaan om in de voortuin een zwembad te bouwen of een privéparkeerplaats aan te leggen. Deze woning ligt in de populaire wijk Cancelada, in een rustige woonomgeving met snelle toegang tot het strand. Je vindt er ook tal van clubs en restaurants in de buurt. De wijk bestaat uit vergelijkbare halfvrijstaande huizen, waarvan sommige hun eigen zwembad hebben, wat het perfect maakt voor gezinnen.
Verder zijn alle voorzieningen dichtbij: winkels, sport- en recreatiemogelijkheden. De verbindingen met de snelwegen A-P7, N-340 en A-7 zijn uitstekend, waardoor Marbella in ongeveer 25 minuten bereikbaar is en het centrum van Estepona slechts 13 minuten rijden. Algeciras ligt iets verder weg, op 48 km.
Cancelada is een gewilde wijk aan de Costa del Sol, bekend om zijn rustige sfeer en de nabijheid van prachtige stranden. Het is ideaal voor wie rust zoekt zonder afstand te doen van gemak en voorzieningen. De regio Málaga biedt een perfecte mix van cultuur, natuur en modern comfort. De Costa del Sol staat wereldwijd bekend als een toplocatie voor tweede woningen en investeringen dankzij het stabiele klimaat, uitstekende infrastructuur en het levendige toerisme. Spanje zelf biedt bovendien een aantrekkelijke levensstijl, goede gezondheidszorg en een diverse vastgoedmarkt.
Bij ons betaalt u als koper géén provisie voor onze diensten als aankoopmakelaar. Wij behoren tot de weinige gecertificeerde aankoopmakelaars in Spanje en hebben meer dan 15 jaar ervaring. Al talloze cliënten hebben wij mogen helpen hun Spaanse droomhuis te vinden.
Een huis kopen - of het nu een tweede woning of investering is - doet u niet elke dag. Daarom bieden wij persoonlijke begeleiding tijdens het hele aankoopproces. Of u nu op zoek bent naar het perfecte vakantiehuis of een slimme investering: wij staan voor u klaar. Van het vinden van uw droomwoning tot het regelen van financiering en advies over de juiste notaris. Wij zijn er voor u.
Dit mooie huis is verdeeld over drie verdiepingen en beschikt over 4 slaapkamers, waarvan sommige met ingebouwde kasten, een gezellige woon-eetkamer met open haard en een gastentoilet. De keuken is volledig uitgerust en er is een badkamer aanwezig. Geniet van zowel een voor- als een privé binnenpatio. Op het terras met zonneterras heb je een adembenemend panoramisch uitzicht op zee dat tot aan de horizon reikt.
Het is toegestaan om in de voortuin een zwembad te bouwen of een privéparkeerplaats aan te leggen. Deze woning ligt in de populaire wijk Cancelada, in een rustige woonomgeving met snelle toegang tot het strand. Je vindt er ook tal van clubs en restaurants in de buurt. De wijk bestaat uit vergelijkbare halfvrijstaande huizen, waarvan sommige hun eigen zwembad hebben, wat het perfect maakt voor gezinnen.
Verder zijn alle voorzieningen dichtbij: winkels, sport- en recreatiemogelijkheden. De verbindingen met de snelwegen A-P7, N-340 en A-7 zijn uitstekend, waardoor Marbella in ongeveer 25 minuten bereikbaar is en het centrum van Estepona slechts 13 minuten rijden. Algeciras ligt iets verder weg, op 48 km.
Cancelada is een gewilde wijk aan de Costa del Sol, bekend om zijn rustige sfeer en de nabijheid van prachtige stranden. Het is ideaal voor wie rust zoekt zonder afstand te doen van gemak en voorzieningen. De regio Málaga biedt een perfecte mix van cultuur, natuur en modern comfort. De Costa del Sol staat wereldwijd bekend als een toplocatie voor tweede woningen en investeringen dankzij het stabiele klimaat, uitstekende infrastructuur en het levendige toerisme. Spanje zelf biedt bovendien een aantrekkelijke levensstijl, goede gezondheidszorg en een diverse vastgoedmarkt.
Spreek een tijd af voor een live video met de makelaar en bekijk de woning vanuit uw woonkamer!


Bij ons betaalt u als koper géén provisie voor onze diensten als aankoopmakelaar. Wij behoren tot de weinige gecertificeerde aankoopmakelaars in Spanje en hebben meer dan 15 jaar ervaring. Al talloze cliënten hebben wij mogen helpen hun Spaanse droomhuis te vinden.
Een huis kopen - of het nu een tweede woning of investering is - doet u niet elke dag. Daarom bieden wij persoonlijke begeleiding tijdens het hele aankoopproces. Of u nu op zoek bent naar het perfecte vakantiehuis of een slimme investering: wij staan voor u klaar. Van het vinden van uw droomwoning tot het regelen van financiering en advies over de juiste notaris. Wij zijn er voor u.