


Stijlvolle Villa met Zeezicht
Calpe, Costa Blanca
Deze moderne villa in Calpe spreidt zich uit over drie elegante woonlagen met een privé lift. Geniet van een verwarmd zoutwater infinity zwembad en panoramisch uitzicht op de Middellandse Zee. Luxe, comfort en ruimte komen hier samen in een ontspannende mediterrane sfeer.
Belangrijkste Kenmerken
Eigenschappen en Details
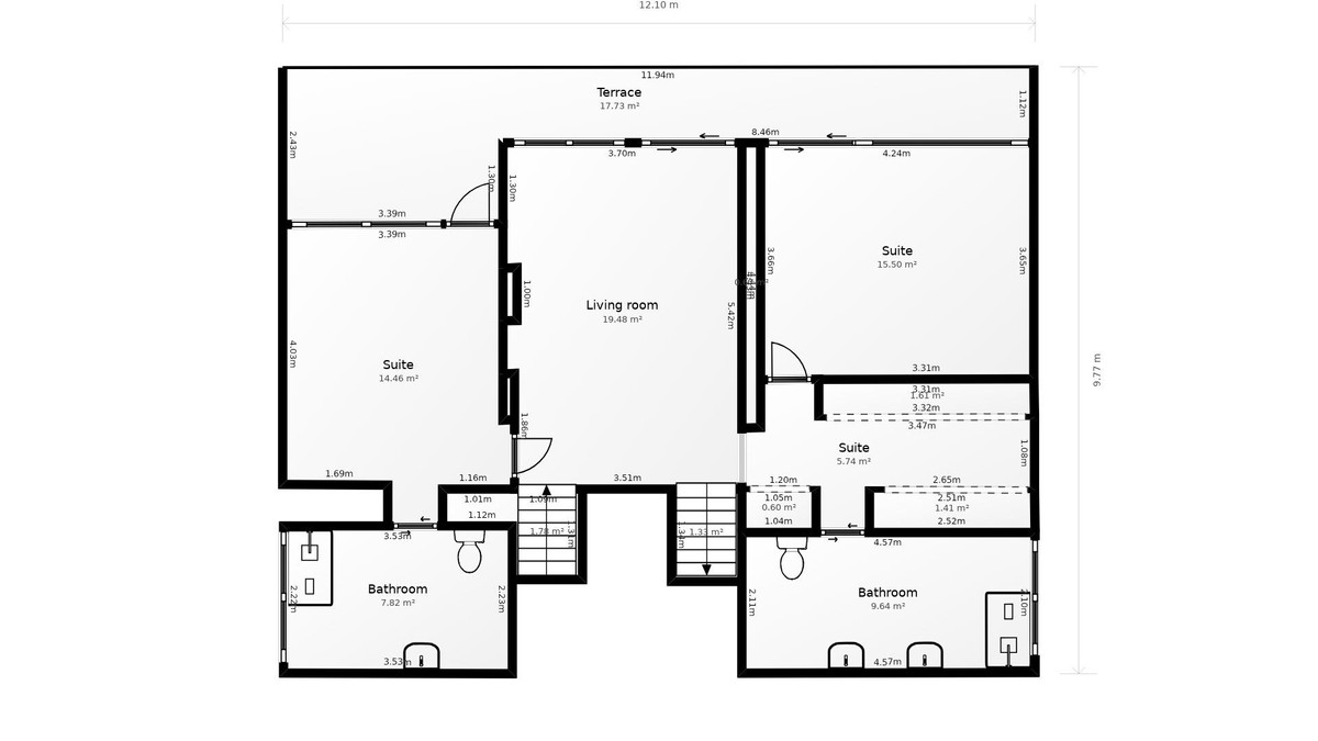
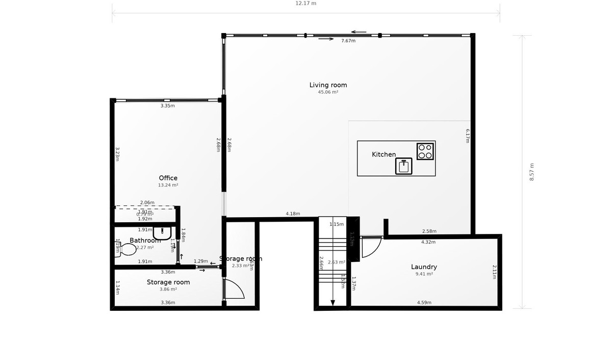
De woning beschikt over een ruime entree met directe toegang tot de garage. Op de tussenverdieping vind je twee grote slaapkamers met eigen badkamer en een aparte TV-lounge die makkelijk om te bouwen is tot een derde slaapkamer. De hoofdverdieping heeft een lichte, open living met een design keuken inclusief kookeiland. Daarnaast is er een praktische bijkeuken, een gastentoilet en een stijlvol kantoor met uitzicht op zee – ideaal voor thuiswerken.
De woonkamer opent naar een groot privé terras met een verwarmd zoutwater infinity zwembad (12 x 3,5 m) dat bijna moeiteloos overloopt in de blauwe horizon. Onder het zwembad ligt een multifunctionele kelderruimte, perfect als gym, wellnessruimte of wijnkelder.
Parkeren is eenvoudig dankzij de ruime garage, terwijl de lift het huis toegankelijk maakt voor iedereen. Daarnaast is er een zonnig privé terras om optimaal te genieten van het mediterrane klimaat. Op het grote perceel is er ruimte om nog eens 200 m² bij te bouwen.
Over Calpe
Calpe is een bruisende kustplaats aan de Costa Blanca met een perfecte mix van rust en levendigheid. Denk aan prachtige stranden, de iconische Peñón de Ifach rots en een vriendelijke lokale sfeer. Ideaal voor investeerders en mensen die een tweede woning zoeken waar natuur en comfort hand in hand gaan.
De Costa Blanca staat bekend om haar milde klimaat het hele jaar door, heerlijke gastronomie en gevarieerde recreatiemogelijkheden. Alicante, op korte afstand, biedt een internationale luchthaven, moderne faciliteiten en een levendige cultuur. Spanje biedt zo alles wat je zoekt: een aantrekkelijke vastgoedmarkt, een ontspannen levensstijl en een gezonde zonovergoten omgeving om altijd naar terug te willen keren.
Woning Kenmerken
Ligging
Beveiliging
Persoonlijke begeleiding
Bij ons betaalt u als koper géén provisie voor onze diensten als aankoopmakelaar. Wij behoren tot de weinige gecertificeerde aankoopmakelaars in Spanje en hebben meer dan 15 jaar ervaring. Al talloze cliënten hebben wij mogen helpen hun Spaanse droomhuis te vinden.
Een huis kopen - of het nu een tweede woning of investering is - doet u niet elke dag. Daarom bieden wij persoonlijke begeleiding tijdens het hele aankoopproces. Of u nu op zoek bent naar het perfecte vakantiehuis of een slimme investering: wij staan voor u klaar. Van het vinden van uw droomwoning tot het regelen van financiering en advies over de juiste notaris. Wij zijn er voor u.
Eigenschappen en Details
De woning beschikt over een ruime entree met directe toegang tot de garage. Op de tussenverdieping vind je twee grote slaapkamers met eigen badkamer en een aparte TV-lounge die makkelijk om te bouwen is tot een derde slaapkamer. De hoofdverdieping heeft een lichte, open living met een design keuken inclusief kookeiland. Daarnaast is er een praktische bijkeuken, een gastentoilet en een stijlvol kantoor met uitzicht op zee – ideaal voor thuiswerken.
De woonkamer opent naar een groot privé terras met een verwarmd zoutwater infinity zwembad (12 x 3,5 m) dat bijna moeiteloos overloopt in de blauwe horizon. Onder het zwembad ligt een multifunctionele kelderruimte, perfect als gym, wellnessruimte of wijnkelder.
Parkeren is eenvoudig dankzij de ruime garage, terwijl de lift het huis toegankelijk maakt voor iedereen. Daarnaast is er een zonnig privé terras om optimaal te genieten van het mediterrane klimaat. Op het grote perceel is er ruimte om nog eens 200 m² bij te bouwen.
Over Calpe
Calpe is een bruisende kustplaats aan de Costa Blanca met een perfecte mix van rust en levendigheid. Denk aan prachtige stranden, de iconische Peñón de Ifach rots en een vriendelijke lokale sfeer. Ideaal voor investeerders en mensen die een tweede woning zoeken waar natuur en comfort hand in hand gaan.
De Costa Blanca staat bekend om haar milde klimaat het hele jaar door, heerlijke gastronomie en gevarieerde recreatiemogelijkheden. Alicante, op korte afstand, biedt een internationale luchthaven, moderne faciliteiten en een levendige cultuur. Spanje biedt zo alles wat je zoekt: een aantrekkelijke vastgoedmarkt, een ontspannen levensstijl en een gezonde zonovergoten omgeving om altijd naar terug te willen keren.
Woning Kenmerken
Ligging
Beveiliging
Een online bezichtiging is mogelijk voor deze woning
Spreek een tijd af voor een live video met de makelaar en bekijk de woning vanuit uw woonkamer!
Certified by


Persoonlijke begeleiding
Bij ons betaalt u als koper géén provisie voor onze diensten als aankoopmakelaar. Wij behoren tot de weinige gecertificeerde aankoopmakelaars in Spanje en hebben meer dan 15 jaar ervaring. Al talloze cliënten hebben wij mogen helpen hun Spaanse droomhuis te vinden.
Een huis kopen - of het nu een tweede woning of investering is - doet u niet elke dag. Daarom bieden wij persoonlijke begeleiding tijdens het hele aankoopproces. Of u nu op zoek bent naar het perfecte vakantiehuis of een slimme investering: wij staan voor u klaar. Van het vinden van uw droomwoning tot het regelen van financiering en advies over de juiste notaris. Wij zijn er voor u.


























































































































