


Stijlvol Appartement met Zeezicht
Calahonda, Costa del Sol
Ontdek dit recent gerenoveerde 2-slaapkamer appartement in het hart van Calahonda, Costa del Sol. Met een zuid-zuidwest oriëntatie geniet je volop van natuurlijk licht en adembenemende uitzichten over zee en bergen, direct vanuit je eigen privé terras.
Appartement Details
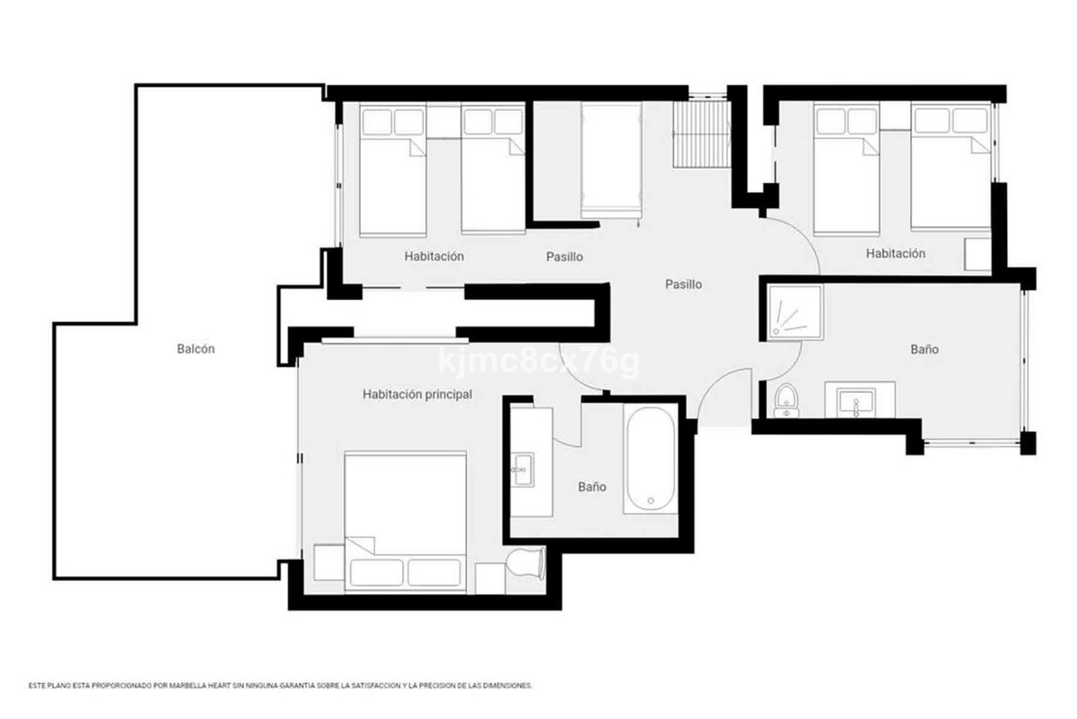
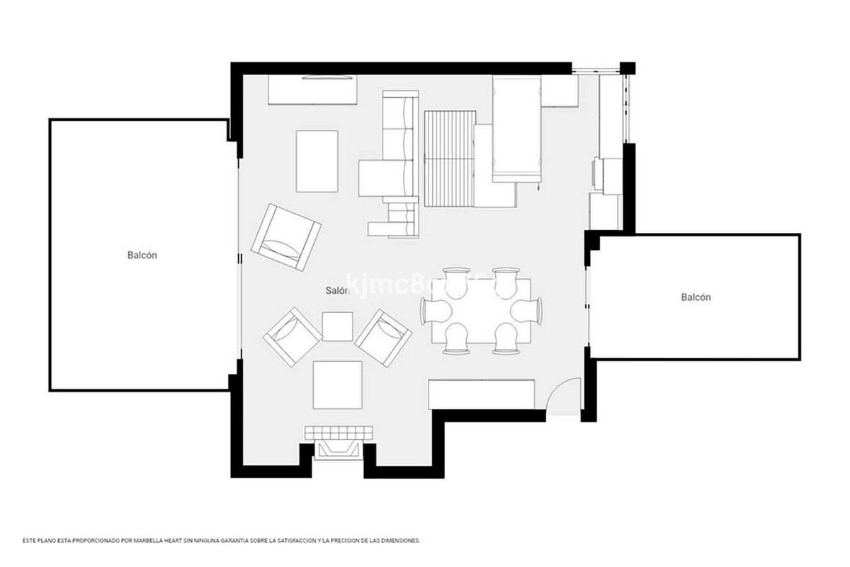
Dit moderne appartement van 112 m² biedt een ruime woonkamer die naadloos overloopt in een privé terras van 25 m², perfect om buiten te dineren of te ontspannen met uitzicht op het gemeenschappelijk zwembad. De volledig uitgeruste keuken met Bosch apparatuur en een handige bijkeuken maken koken een plezier. De hoofdslaapkamer beschikt over een ensuite badkamer en directe toegang tot het terras. Comfort is gegarandeerd met airconditioning (warm/koud), centrale verwarming en een open haard voor gezellige avonden. Marmeren vloeren, inbouwkasten en optische vezel internet maken het geheel compleet. Het appartement ligt in een omheind complex met lift, gemeenschappelijke tuin en zwembad.
Over Calahonda
Calahonda is ideaal gelegen aan de Costa del Sol, dichtbij prachtige golfbanen en bosrijke natuur, wat het perfect maakt voor liefhebbers van buitenactiviteiten. De nabijheid van Málaga en goede vervoersverbindingen zorgen voor gemak en bereikbaarheid. Deze urbanisatie combineert rust met de voordelen van een levendige omgeving, ideaal voor zowel vakantiehuizen als investeringen.
Woning Kenmerken
Ligging
Beveiliging
Persoonlijke begeleiding
Bij ons betaalt u als koper géén provisie voor onze diensten als aankoopmakelaar. Wij behoren tot de weinige gecertificeerde aankoopmakelaars in Spanje en hebben meer dan 15 jaar ervaring. Al talloze cliënten hebben wij mogen helpen hun Spaanse droomhuis te vinden.
Een huis kopen - of het nu een tweede woning of investering is - doet u niet elke dag. Daarom bieden wij persoonlijke begeleiding tijdens het hele aankoopproces. Of u nu op zoek bent naar het perfecte vakantiehuis of een slimme investering: wij staan voor u klaar. Van het vinden van uw droomwoning tot het regelen van financiering en advies over de juiste notaris. Wij zijn er voor u.
Appartement Details
Dit moderne appartement van 112 m² biedt een ruime woonkamer die naadloos overloopt in een privé terras van 25 m², perfect om buiten te dineren of te ontspannen met uitzicht op het gemeenschappelijk zwembad. De volledig uitgeruste keuken met Bosch apparatuur en een handige bijkeuken maken koken een plezier. De hoofdslaapkamer beschikt over een ensuite badkamer en directe toegang tot het terras. Comfort is gegarandeerd met airconditioning (warm/koud), centrale verwarming en een open haard voor gezellige avonden. Marmeren vloeren, inbouwkasten en optische vezel internet maken het geheel compleet. Het appartement ligt in een omheind complex met lift, gemeenschappelijke tuin en zwembad.
Over Calahonda
Calahonda is ideaal gelegen aan de Costa del Sol, dichtbij prachtige golfbanen en bosrijke natuur, wat het perfect maakt voor liefhebbers van buitenactiviteiten. De nabijheid van Málaga en goede vervoersverbindingen zorgen voor gemak en bereikbaarheid. Deze urbanisatie combineert rust met de voordelen van een levendige omgeving, ideaal voor zowel vakantiehuizen als investeringen.
Woning Kenmerken
Ligging
Beveiliging
Een online bezichtiging is mogelijk voor deze woning
Spreek een tijd af voor een live video met de makelaar en bekijk de woning vanuit uw woonkamer!
Certified by


Persoonlijke begeleiding
Bij ons betaalt u als koper géén provisie voor onze diensten als aankoopmakelaar. Wij behoren tot de weinige gecertificeerde aankoopmakelaars in Spanje en hebben meer dan 15 jaar ervaring. Al talloze cliënten hebben wij mogen helpen hun Spaanse droomhuis te vinden.
Een huis kopen - of het nu een tweede woning of investering is - doet u niet elke dag. Daarom bieden wij persoonlijke begeleiding tijdens het hele aankoopproces. Of u nu op zoek bent naar het perfecte vakantiehuis of een slimme investering: wij staan voor u klaar. Van het vinden van uw droomwoning tot het regelen van financiering en advies over de juiste notaris. Wij zijn er voor u.












































































































































































