


Benalmadena Pueblo, Costa del Sol
Dit sfeervolle appartement in Benalmádena Pueblo biedt een zonnig terras met prachtig uitzicht op zee, ligt op slechts 500 meter van het centrum en is klaar om zo te betrekken. Met airconditioning, een gemeenschappelijk zwembad en een toplocatie voor sport en ontspanning.
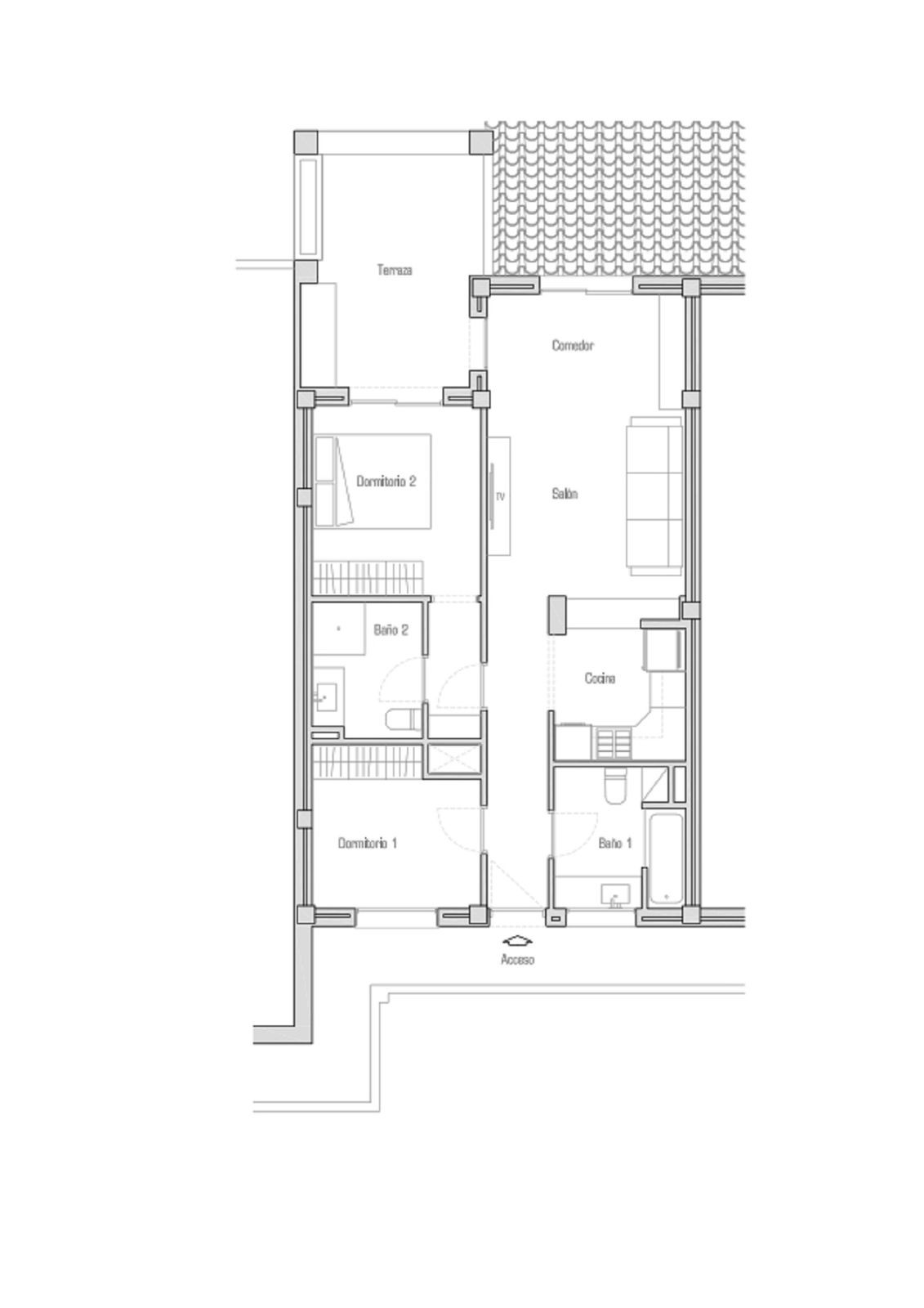
Dit uitstekend onderhouden appartement van 73 m² plus een 14 m² groot zuidgericht terras heeft alles wat je zoekt: een volledig ingerichte keuken, airconditioning in elke kamer en praktische inbouwkasten. De lichte woonkamer geeft toegang tot het terras met panoramisch uitzicht op zee. De master bedroom met ensuite badkamer biedt ook toegang tot het terras, ideaal om te genieten van de zon onder het genot van het uitzicht. Het appartement ligt in een omheind complex met een veilige intercom en gemeenschappelijke tuin en zwembad. Er is een lift aanwezig en de toegang tot parkeerplaatsen is eenvoudig, vlak naast het complex. Dankzij de ligging dichtbij winkels, scholen en het stadscentrum, maar ook dichtbij openbaar vervoer, is dit een prachtige plek om te wonen of als investering. De woonomgeving heeft een sportcentrum op 200 meter met alle faciliteiten voor een actieve levensstijl.
Benalmádena Pueblo is een charmant, traditioneel dorp met een perfecte mix van rust en voorzieningen. Voor vastgoedinvesteerders en gasten die een tweede thuis zoeken, biedt deze locatie een ontspannen omgeving met dichtbij de kust en Málaga. De Costa del Sol staat bekend om haar zonnige klimaat, prachtige stranden en levendige cultuur, waarmee het een aanlokkelijke bestemming blijft. Málaga zelf biedt moderne stedelijke voorzieningen, goede verbindingen en een rijke geschiedenis. Investeren in deze regio betekent profiteren van een sterke toeristenmarkt, betrouwbare verhuurmogelijkheden en een constante waardestijging.
Bij ons betaalt u als koper géén provisie voor onze diensten als aankoopmakelaar. Wij behoren tot de weinige gecertificeerde aankoopmakelaars in Spanje en hebben meer dan 15 jaar ervaring. Al talloze cliënten hebben wij mogen helpen hun Spaanse droomhuis te vinden.
Een huis kopen - of het nu een tweede woning of investering is - doet u niet elke dag. Daarom bieden wij persoonlijke begeleiding tijdens het hele aankoopproces. Of u nu op zoek bent naar het perfecte vakantiehuis of een slimme investering: wij staan voor u klaar. Van het vinden van uw droomwoning tot het regelen van financiering en advies over de juiste notaris. Wij zijn er voor u.
Dit uitstekend onderhouden appartement van 73 m² plus een 14 m² groot zuidgericht terras heeft alles wat je zoekt: een volledig ingerichte keuken, airconditioning in elke kamer en praktische inbouwkasten. De lichte woonkamer geeft toegang tot het terras met panoramisch uitzicht op zee. De master bedroom met ensuite badkamer biedt ook toegang tot het terras, ideaal om te genieten van de zon onder het genot van het uitzicht. Het appartement ligt in een omheind complex met een veilige intercom en gemeenschappelijke tuin en zwembad. Er is een lift aanwezig en de toegang tot parkeerplaatsen is eenvoudig, vlak naast het complex. Dankzij de ligging dichtbij winkels, scholen en het stadscentrum, maar ook dichtbij openbaar vervoer, is dit een prachtige plek om te wonen of als investering. De woonomgeving heeft een sportcentrum op 200 meter met alle faciliteiten voor een actieve levensstijl.
Benalmádena Pueblo is een charmant, traditioneel dorp met een perfecte mix van rust en voorzieningen. Voor vastgoedinvesteerders en gasten die een tweede thuis zoeken, biedt deze locatie een ontspannen omgeving met dichtbij de kust en Málaga. De Costa del Sol staat bekend om haar zonnige klimaat, prachtige stranden en levendige cultuur, waarmee het een aanlokkelijke bestemming blijft. Málaga zelf biedt moderne stedelijke voorzieningen, goede verbindingen en een rijke geschiedenis. Investeren in deze regio betekent profiteren van een sterke toeristenmarkt, betrouwbare verhuurmogelijkheden en een constante waardestijging.
Spreek een tijd af voor een live video met de makelaar en bekijk de woning vanuit uw woonkamer!


Bij ons betaalt u als koper géén provisie voor onze diensten als aankoopmakelaar. Wij behoren tot de weinige gecertificeerde aankoopmakelaars in Spanje en hebben meer dan 15 jaar ervaring. Al talloze cliënten hebben wij mogen helpen hun Spaanse droomhuis te vinden.
Een huis kopen - of het nu een tweede woning of investering is - doet u niet elke dag. Daarom bieden wij persoonlijke begeleiding tijdens het hele aankoopproces. Of u nu op zoek bent naar het perfecte vakantiehuis of een slimme investering: wij staan voor u klaar. Van het vinden van uw droomwoning tot het regelen van financiering en advies over de juiste notaris. Wij zijn er voor u.