


Adembenemend Huis met Zeezicht
Alhaurín de la Torre, Costa del Sol
Deze ruime familiewoning biedt spectaculair uitzicht op de baai van Málaga en de Sierra de Mijas. Op minder dan 4 km van het charmante Alhaurín de la Torre en dichtbij golf, stad en luchthaven is dit een unieke kans voor een woning of B&B.
Details van de Woning
Gelegen in een landelijke omgeving met noordelijke zonoriëntatie, verkeert deze goed onderhouden woning in uitstekende staat. Het privézwembad en de riante tuin zorgen voor ultieme ontspanning met volop privacy. De woning beschikt over airconditioning, centrale verwarming en een gezellige open haard voor het hele jaar plezier.
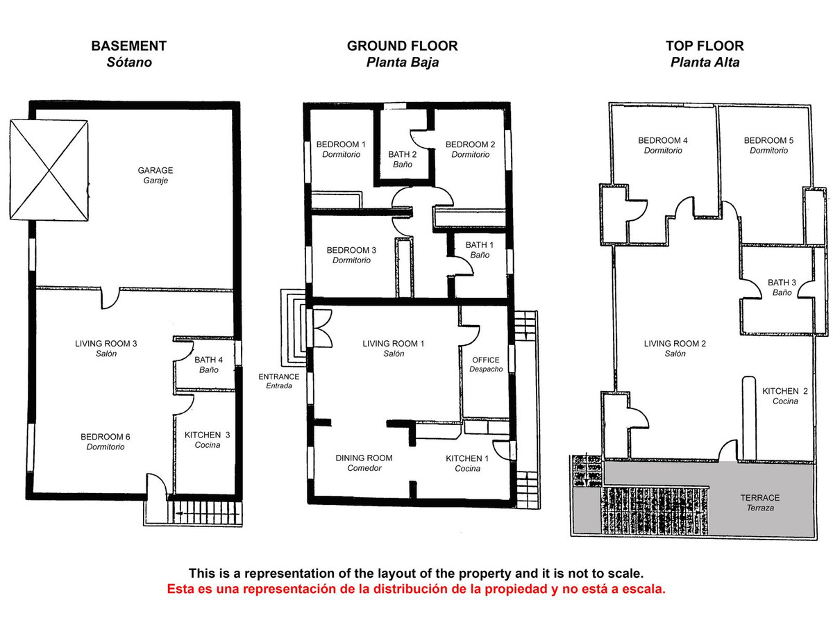
De indeling bestaat uit drie zelfstandige woonruimtes inclusief een 2-slaapkamer gastenappartement met eigen terras en schitterend zee- en bergzicht. De begane grond herbergt een ruime woonkamer, vier slaapkamers (waarvan de master een ensuite badkamer heeft), een open keuken en een overdekt terras met uitzicht op de baai.
De 155 m² grote kelder heeft een eigen ingang en biedt flexibele mogelijkheden als opslagruimte of extra woonruimte met badkamer. Bovendien is er een garage voor twee tot drie auto’s plus extra parkeerruimte naast het huis.
Over Alhaurín de la Torre
Alhaurín de la Torre is een geliefde gemeente in de Costa del Sol, bekend om haar landelijke charme en moderne voorzieningen. Dit gebied biedt een perfecte balans tussen rust en nabijheid van Málaga stad en het strand. Voor investeerders en tweedehuisbezitters is dit een locatie met groeipotentieel, goede infrastructuur en uitstekende recreatiemogelijkheden.
De Costa del Sol staat bekend om zijn zonnige klimaat, prachtige stranden en luxe lifestyle. Málaga combineert een bruisende stadssfeer met cultuur, historie en een internationale luchthaven, ideaal voor comfortabele reizen. Spanje biedt investeerders een stabiele vastgoedmarkt met aantrekkelijke levensstijlvooruitzichten.
Woning Kenmerken
Ligging
Persoonlijke begeleiding
Bij ons betaalt u als koper géén provisie voor onze diensten als aankoopmakelaar. Wij behoren tot de weinige gecertificeerde aankoopmakelaars in Spanje en hebben meer dan 15 jaar ervaring. Al talloze cliënten hebben wij mogen helpen hun Spaanse droomhuis te vinden.
Een huis kopen - of het nu een tweede woning of investering is - doet u niet elke dag. Daarom bieden wij persoonlijke begeleiding tijdens het hele aankoopproces. Of u nu op zoek bent naar het perfecte vakantiehuis of een slimme investering: wij staan voor u klaar. Van het vinden van uw droomwoning tot het regelen van financiering en advies over de juiste notaris. Wij zijn er voor u.
Details van de Woning
Gelegen in een landelijke omgeving met noordelijke zonoriëntatie, verkeert deze goed onderhouden woning in uitstekende staat. Het privézwembad en de riante tuin zorgen voor ultieme ontspanning met volop privacy. De woning beschikt over airconditioning, centrale verwarming en een gezellige open haard voor het hele jaar plezier.
De indeling bestaat uit drie zelfstandige woonruimtes inclusief een 2-slaapkamer gastenappartement met eigen terras en schitterend zee- en bergzicht. De begane grond herbergt een ruime woonkamer, vier slaapkamers (waarvan de master een ensuite badkamer heeft), een open keuken en een overdekt terras met uitzicht op de baai.
De 155 m² grote kelder heeft een eigen ingang en biedt flexibele mogelijkheden als opslagruimte of extra woonruimte met badkamer. Bovendien is er een garage voor twee tot drie auto’s plus extra parkeerruimte naast het huis.
Over Alhaurín de la Torre
Alhaurín de la Torre is een geliefde gemeente in de Costa del Sol, bekend om haar landelijke charme en moderne voorzieningen. Dit gebied biedt een perfecte balans tussen rust en nabijheid van Málaga stad en het strand. Voor investeerders en tweedehuisbezitters is dit een locatie met groeipotentieel, goede infrastructuur en uitstekende recreatiemogelijkheden.
De Costa del Sol staat bekend om zijn zonnige klimaat, prachtige stranden en luxe lifestyle. Málaga combineert een bruisende stadssfeer met cultuur, historie en een internationale luchthaven, ideaal voor comfortabele reizen. Spanje biedt investeerders een stabiele vastgoedmarkt met aantrekkelijke levensstijlvooruitzichten.
Woning Kenmerken
Ligging
Een online bezichtiging is mogelijk voor deze woning
Spreek een tijd af voor een live video met de makelaar en bekijk de woning vanuit uw woonkamer!
Certified by


Persoonlijke begeleiding
Bij ons betaalt u als koper géén provisie voor onze diensten als aankoopmakelaar. Wij behoren tot de weinige gecertificeerde aankoopmakelaars in Spanje en hebben meer dan 15 jaar ervaring. Al talloze cliënten hebben wij mogen helpen hun Spaanse droomhuis te vinden.
Een huis kopen - of het nu een tweede woning of investering is - doet u niet elke dag. Daarom bieden wij persoonlijke begeleiding tijdens het hele aankoopproces. Of u nu op zoek bent naar het perfecte vakantiehuis of een slimme investering: wij staan voor u klaar. Van het vinden van uw droomwoning tot het regelen van financiering en advies over de juiste notaris. Wij zijn er voor u.


















































































































































































































































































